中古住宅

静岡市葵区瀬名中央一丁目中古住宅 4台駐車場付き!

所在地

静岡県静岡市葵区瀬名中央一丁目

地図で確認
※地図上に表示される物件の位置は付近住所に所在することを表すものであり、実際の物件所在地とは異なる場合がございます。
交通
しずてつジャストライン/汐出町 徒歩5分
学区
西奈南小学校/西奈中学校
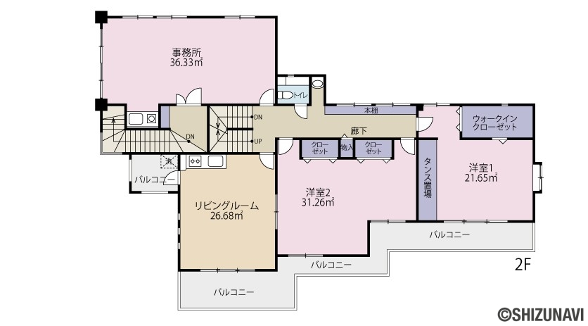
間取り
6SLDK(1F:3SLDK、 2F:2LDK+事務所、 RF:ルーフバルコニー ※6SLDKの6の中には事務所を含めております)
築年月
2002年10月(築23年)
建物面積
367.74m2(111.24坪)
土地面積
432.68m2(130.88坪)
お気に入りに追加

お気に入り登録者数-

お気に入りって何?画面上部画面下部のボタンからお気に入り物件をいつでも確認できます。また「会員登録」すると、値下げ情報をメールでお知らせします。

お問い合わせの際に、物件番号を
お伝えいただくとスムーズです。

物件番号H-301408

間取り

間取り 6SLDK(1F:3SLDK、 2F:2LDK+事務所、 RF:ルーフバルコニー ※6SLDKの6の中には事務所を含めております)
建物面積 367.74m2(111.24坪)
土地面積 432.68m2(130.88坪)
日当たり良好な南向き角地! 鉄筋コンクリート造 事務所付きの二世帯住宅 駐車場4台付き!
  • 日当たり良好で、毎日気持ちがいい♪
  • 頑丈な鉄筋コンクリート造!エントランス面と南面はタイル貼り!お洒落で高級感のある外観☆
  • 静清バイパス近くで車での交通アクセス良好!
  • 駐車場4台付き!複数台の車を所有する方には必須ですが、来客時にも便利!(うち1台はガレージへ駐車)
  • 閑静な住宅街の南向き角地
  • 事務所付きの二世帯住宅は住宅利用以外にも介護施設や企業の事務所兼住宅利用等幅広い用途の可能性があります!
お気に入りに追加

お気に入り登録者数-

お気に入りって何?画面上部画面下部のボタンからお気に入り物件をいつでも確認できます。また「会員登録」すると、値下げ情報をメールでお知らせします。

お問い合わせの際に、物件番号を
お伝えいただくとスムーズです。

物件番号H-301408

物件の特徴・設備

間取り・広さ LDK20畳以上
土地 土地100坪以上
室内設備・仕様・収納 全居室収納、納戸
キッチン 独立型キッチン、対面式キッチン
バルコニー・テラス・庭 ルーフバルコニー、南面バルコニー、庭10坪以上
日当たり・採光 南向き(南東・南西含む)、2面採光以上
構造・工法・仕様 RC造、外壁タイル貼り
駐車場・駐輪場 駐車場2台以上
道路 前道6m以上、接道幅10m以上
立地・環境 角地、閑静な住宅地
周辺環境 スーパー 徒歩10分以内、小学校 徒歩10分以内、バス停 徒歩10分以内、コンビニ 徒歩10分以内、公園 徒歩10分以内
証明書類あり 新築時・増改築時の設計図あり
制限事項 景観法、高度地区
備考 お引渡しは2026年5月以降
井戸付き(上水道と併用出来ます)

物件詳細情報

前面道路

6m幅(アスファルト舗装)

西側 6.0m 公道 接面 約20m、北側 4.0m 公道 接面 約23m

建物構造 RC(鉄筋コンクリート) / 2階建
駐車場 有り(4台、駐車場代無料)
都市計画 市街化区域
地目 宅地
用途地域 第二種中高層住居専用地域
建ぺい率 60%
容積率 200%
土地権利 所有権
上水道
下水道
ガス・オール電化 都市ガス
現況 居住中
引渡 期日指定
お気に入りに追加

お気に入り登録者数-

お気に入りって何?画面上部画面下部のボタンからお気に入り物件をいつでも確認できます。また「会員登録」すると、値下げ情報をメールでお知らせします。

お問い合わせの際に、物件番号を
お伝えいただくとスムーズです。

物件番号H-301408

周辺環境

交通機関

  • しずてつジャストライン/汐出町

    約378m(徒歩5分)

  • 静岡清水線/古庄駅

    約2,100m(徒歩27分)

ショッピング

  • 富士屋瀬名店

    約411m(徒歩6分)

  • ファミリーマート静岡南瀬名町店

    約450m(徒歩6分)

  • 杏林堂瀬名川店

    約479m(徒歩6分)

教育機関

  • 西奈南小学校

    約777m(徒歩10分)

  • 西奈中学校

    約1,200m(徒歩15分)

医療機関

  • 佐々木ハートクリニック

    約308m(徒歩4分)

  • 瀬名こどもクリニック

    約562m(徒歩8分)

価格

価格 5,800万円

ローンシミュレーション

この物件を購入した場合の、
月々の支払い価格の一例です。

返済例 1

ボーナス併用プラン

毎月返済
ボーナス月加算額
(1回)
返済例 2

ボーナスなしプラン

毎月返済
ボーナス月加算額
(1回)
0
  • 借入額 万円
  • 頭金 万円
  • 変動金利(年利) %
  • 返済期間

※ボーナスは年2回で計算しています。

※別途諸経費が必要となります。

※その他の資金計画のシミュレーションを行いたい場合は「資金計画シミュレーション」をご利用ください。

イベント情報

現地案内会(事前に必ずお問い合わせください)
日程/公開中
■ネットでの予約

物件見学のご予約について、お電話はもちろん、しずなび内の「見学予約」または、「資料請求」ボタンからネット予約も可能です。
ご予約いただけますと、お客様のご都合の良い時間に合わせてご案内が可能です。

毎日ご案内可能ですが、各物件にスタッフが常駐しておりませんのでご連絡頂いてから向かわせて頂いております。
事前にご予約頂ければ、各種資料もご準備いたします。
各ご家庭に沿ったご案内ができるように誠心誠意ご対応いたします。

建物はもちろん、その土地の災害リスク、将来人口予想、周辺環境もレポートを纏めてご案内できます。お気軽にお申し付けください。

■選べるコースもご用意しております。

①ショートコース(10~15分)
主に物件の雰囲気や間取りを見て頂ける軽めコース

②通常コース(30~60分)
物件の内覧+住宅ローン+資金計画、スケジュールや周辺環境等、住宅に購入に関することを様々な角度からご提案させて頂くコース。

③ロングコース(上記以上)
通常コース+他の物件もまとめてみたい方にオススメコース。

中古住宅

静岡市葵区瀬名中央一丁目中古住宅 4台駐車場付き!

所在地
静岡県静岡市葵区瀬名中央一丁目
価格
5,800万円
間取り
6SLDK(1F:3SLDK、 2F:2LDK+事務所、 RF:ルーフバルコニー ※6SLDKの6の中には事務所を含めております)
物件番号 H-301408

取引有効期限 2026年03月20日
次回更新予定日 2026年03月20日

※本掲載情報と現況に差異がある場合、現況を優先します。掲載物件は売却済あるいは売出中止となる場合もあります。
※価格は物件の代金総額を表示しており、消費税が課税される場合は税込み価格です。 (1000円未満は切り上げ。)
※金利(初期値)は2023年9月1日現在のものです。当社提携銀行によるもので、お客様によって金利が変わる場合もございます。

お気に入りに追加

お気に入り登録者数-

お気に入りって何?画面上部画面下部のボタンからお気に入り物件をいつでも確認できます。また「会員登録」すると、値下げ情報をメールでお知らせします。

お問い合わせの際に、物件番号を
お伝えいただくとスムーズです。

物件番号H-301408
  1. メリット1

    会員優先・
    非公開物件

    の閲覧

  2. メリット2

    新着物件
    先行配信

  3. メリット3

    プライスダウン
    物件
    を先行配信

  4. メリット4

    自分だけの
    マイページ作成

  5. メリット5

    イベント・セミナー・
    お役立ち情報

    お届け