マンション
中古マンション

【3月末リフォーム完了予定です!】ナイスアーバン城北ヒルズ 2LDK+S 101号室 専用庭付き

価格
管理費(月額)
9,000円
修繕積立金(月額)
17,520円
所在地

静岡県浜松市中央区城北2丁目5-14

地図で確認
※地図上に表示される物件の位置は付近住所に所在することを表すものであり、実際の物件所在地とは異なる場合がございます。
交通
バス停/追分小学校 100m
学区
追分小学校/北部中学校
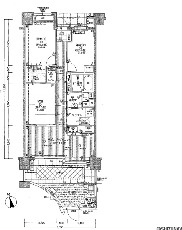
間取り
2LDK+S
築年月
2004年8月(築21年)
専有面積
70.09m2(21.2坪)(壁芯)
バルコニー面積
11.02m2(3.33坪)
専用庭面積
6.82m2(2.06坪)

リフォーム・リノベーション

水回り

2026年2月(完了予定)

【施工場所】キッチン、浴室、トイレ、洗面所、給湯器

内装

2026年2月(完了予定)

【施工場所】内装全面(床・壁・天井・建具)、全室クロス張替え、床(フローリング等)、壁・天井(クロス・塗装等)、サッシ

リノベーション

2026年2月(完了予定)

和室→洋室+ウォークインクローゼットなどに間取り変更

お気に入りに追加

お気に入り登録者数-

お気に入りって何?画面上部画面下部のボタンからお気に入り物件をいつでも確認できます。また「会員登録」すると、値下げ情報をメールでお知らせします。

お問い合わせの際に、物件番号を
お伝えいただくとスムーズです。

物件番号M-302949

間取り

間取り 2LDK+S
専有面積 70.09m2
バルコニー面積 11.02m2
専用庭面積 6.82m2(2.06坪)
【希少性の高い 南向き専用庭付き×リノベーション物件】
◆コンビニ、ドラッグストア徒歩圏内!
◆ペット相談可
◆リノベーション物件のため、即入居可
◆閑静な住宅地に位置し、住環境良好♪

●弊社売主のため、仲介手数料不要初 期費用を抑えて購入可能!

●専用庭付きの1階住戸で、階下への音を気にせず生活可能

●南向きにつき日当たり良好

●専有面積70.09㎡のゆとりある3LDK

●家族とのコミュニケーションが取りやすい間取りに刷新

●ペット飼育可(規約あり)

●閑静な住宅地に位置し、住環境良好

●空家のため、内覧対応もスムーズです。是非お気軽にご相談ください!

●2026年2月リノベーション完了予定
 └ キッチン周りの壁を撤去し、LDKを見渡せる開放的な空間へ
 └ キッチン・浴室・トイレ・洗面所など水回りをリフォーム予定
 └ 和室を洋室+ウォークインクローゼットへ変更

お気に入りに追加

お気に入り登録者数-

お気に入りって何?画面上部画面下部のボタンからお気に入り物件をいつでも確認できます。また「会員登録」すると、値下げ情報をメールでお知らせします。

お問い合わせの際に、物件番号を
お伝えいただくとスムーズです。

物件番号M-302949

物件の特徴・設備

階・フロア 1階
低層(3階建以下)
間取り・広さ LDK15畳以上
室内設備・仕様・収納 ウォークインクローゼット
キッチン 対面式キッチン
バス・トイレ 浴室1坪以上、追い炊き機能
バルコニー・テラス・庭 専用庭
日当たり・採光 南向き(南東・南西含む)
構造・工法・仕様 RC造
共用部 エレベーター、宅配ボックス、トランクルーム
管理・セキュリティ TVモニター付インターフォン
駐車場・駐輪場 駐車場空き有
周辺環境 スーパー 徒歩10分以内、バス停 徒歩10分以内、コンビニ 徒歩10分以内
その他 ペット相談、売主・代理
制限事項 景観法、中高層住居専用地区

物件詳細情報

マンション名 ナイスアーバン城北ヒルズ
総戸数 47戸
所在階/階数 1階/1階建
構造 RC(鉄筋コンクリート)
管理形態 全部委託
駐車場 有り(1台、3,500円)
ペット
用途地域 第二種中高層住居専用地域
土地権利 所有権
現況 空家
引渡 相談
お気に入りに追加

お気に入り登録者数-

お気に入りって何?画面上部画面下部のボタンからお気に入り物件をいつでも確認できます。また「会員登録」すると、値下げ情報をメールでお知らせします。

お問い合わせの際に、物件番号を
お伝えいただくとスムーズです。

物件番号M-302949

周辺環境

交通機関

  • バス停/追分小学校

    約100m(徒歩2分)

  • 浜松駅

    約2,300m(徒歩29分)

ショッピング

  • 杏林堂城北店

    約440m(徒歩6分)

  • マックスバリュエクスプレス浜松住吉店

    約1,400m(徒歩18分)

  • セブンイレブン浜松布橋2丁目店

    約450m(徒歩6分)

教育機関

  • 追分小学校

    約150m(徒歩2分)

  • 北部中学校

    約1,300m(徒歩17分)

医療機関

  • 総合病院聖隷浜松病院

    約1,500m(徒歩19分)

公共施設

  • 浜松市中央区役所

    約1,500m(徒歩19分)

  • 城北公園

    約720m(徒歩9分)

その他

  • 浜松布橋郵便局

    約330m(徒歩5分)

価格

価格 2,490万円
管理費(月額) 9,000円
修繕積立金(月額) 17,520円
駐車場 有り(1台、3,500円)
専用庭 200

ローンシミュレーション

この物件を購入した場合の、
月々の支払い価格の一例です。

返済例 1

ボーナス併用プラン

毎月返済
ボーナス月加算額
(1回)
返済例 2

ボーナスなしプラン

毎月返済
ボーナス月加算額
(1回)
0
  • 借入額 万円
  • 頭金 万円
  • 変動金利(年利) %
  • 返済期間

※ボーナスは年2回で計算しています。

※別途諸経費が必要となります。

※その他の資金計画のシミュレーションを行いたい場合は「資金計画シミュレーション」をご利用ください。

イベント情報

現地案内会(事前に必ずお問い合わせください)
日程/公開中
■ネットでの予約

物件見学のご予約について、お電話はもちろん、しずなび内の「見学予約」または、「資料請求」ボタンからネット予約も可能です。
ご予約いただけますと、お客様のご都合の良い時間に合わせてご案内が可能です。

毎日ご案内可能ですが、各物件にスタッフが常駐しておりませんのでご連絡頂いてから向かわせて頂いております。
事前にご予約頂ければ、各種資料もご準備いたします。
各ご家庭に沿ったご案内ができるように誠心誠意ご対応いたします。

建物はもちろん、その土地の災害リスク、将来人口予想、周辺環境もレポートを纏めてご案内できます。お気軽にお申し付けください。

■選べるコースもご用意しております。

①ショートコース(10~15分)
主に物件の雰囲気や間取りを見て頂ける軽めコース

②通常コース(30~60分)
物件の内覧+住宅ローン+資金計画、スケジュールや周辺環境等、住宅に購入に関することを様々な角度からご提案させて頂くコース。

③ロングコース(上記以上)
通常コース+他の物件もまとめてみたい方にオススメコース。

マンション
中古マンション

【3月末リフォーム完了予定です!】ナイスアーバン城北ヒルズ 2LDK+S 101号室 専用庭付き

所在地
静岡県浜松市中央区城北2丁目5-14
価格
2,490万円
間取り
2LDK+S
物件番号 M-302949

取引有効期限 2026年03月22日
次回更新予定日 2026年03月22日

※本掲載情報と現況に差異がある場合、現況を優先します。掲載物件は売却済あるいは売出中止となる場合もあります。
※価格は物件の代金総額を表示しており、消費税が課税される場合は税込み価格です。 (1000円未満は切り上げ。)
※金利(初期値)は2023年9月1日現在のものです。当社提携銀行によるもので、お客様によって金利が変わる場合もございます。

お気に入りに追加

お気に入り登録者数-

お気に入りって何?画面上部画面下部のボタンからお気に入り物件をいつでも確認できます。また「会員登録」すると、値下げ情報をメールでお知らせします。

お問い合わせの際に、物件番号を
お伝えいただくとスムーズです。

物件番号M-302949
  1. メリット1

    会員優先・
    非公開物件

    の閲覧

  2. メリット2

    新着物件
    先行配信

  3. メリット3

    プライスダウン
    物件
    を先行配信

  4. メリット4

    自分だけの
    マイページ作成

  5. メリット5

    イベント・セミナー・
    お役立ち情報

    お届け