NEW
中古住宅

【リフォーム中】静岡市清水区三保 5DK 

所在地

静岡県静岡市清水区三保39-7

地図で確認
※地図上に表示される物件の位置は付近住所に所在することを表すものであり、実際の物件所在地とは異なる場合がございます。
交通
しずてつジャストライン「三保松原入口」/徒歩5分
静岡鉄道静岡清水線「新清水」/4300m
学区
清水三保第一小学校/清水第五中学校
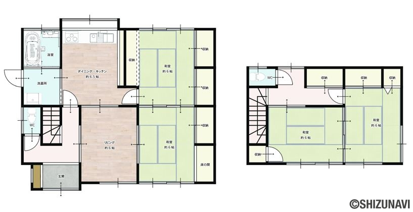
間取り
5DK(1階:DK6.5帖、L6帖、和室6帖、6帖 2階:和室6帖、6帖)
築年月
1974年12月(築50年)
建物面積
99.45m2(30.08坪)
土地面積
184.91m2(55.93坪)
お気に入りに追加

お気に入り登録者数-

お気に入りって何?画面上部画面下部のボタンからお気に入り物件をいつでも確認できます。また「会員登録」すると、値下げ情報をメールでお知らせします。

お問い合わせの際に、物件番号を
お伝えいただくとスムーズです。

物件番号H-287728

間取り

間取り 5DK(1階:DK6.5帖、L6帖、和室6帖、6帖 2階:和室6帖、6帖)
建物面積 99.45m2(30.08坪)
土地面積 184.91m2(55.93坪)
【リフォーム中】清水区三保 5DK 

■ライフライン
上水道、下水道
■学区
清水三保第一小学校、清水第五中学校
■おすすめポイント
・神の道入口付近の津波浸水県外エリア
・セカンドハウスや自分でリノベーション楽しみたい方におすすめ

*間取や金額はリフォームにより変更になる可能性があります

お気に入りに追加

お気に入り登録者数-

お気に入りって何?画面上部画面下部のボタンからお気に入り物件をいつでも確認できます。また「会員登録」すると、値下げ情報をメールでお知らせします。

お問い合わせの際に、物件番号を
お伝えいただくとスムーズです。

物件番号H-287728

物件の特徴・設備

間取り・広さ 和室
室内設備・仕様・収納 全居室収納
周辺環境 バス停 徒歩10分以内

物件詳細情報

前面道路

4.0m幅

南西 私道 接面4.0m 位置指定あり

建物構造 木造 / 2階建
駐車場 有り(駐車場代無料)
都市計画 市街化区域
地目 宅地
用途地域 第二種中高層住居専用地域
建ぺい率 60%
容積率 200%
土地権利 所有権
上水道
下水道
現況 空家
引渡 相談
お気に入りに追加

お気に入り登録者数-

お気に入りって何?画面上部画面下部のボタンからお気に入り物件をいつでも確認できます。また「会員登録」すると、値下げ情報をメールでお知らせします。

お問い合わせの際に、物件番号を
お伝えいただくとスムーズです。

物件番号H-287728

周辺環境

交通機関

  • しずてつバス「三保松原入口」

    約400m(徒歩5分)

ショッピング

  • セブンイレブン清水三保店

    約490m(徒歩7分)

  • 食鮮館タイヨー三保店

    約750m(徒歩10分)

教育機関

  • 清水三保第一小学校

    約490m(徒歩7分)

  • 清水第五中学校

    約740m(徒歩10分)

公共施設

  • 日本平消防署三保出張所

    約950m(徒歩12分)

  • 清水三保郵便局

    約1,200m(徒歩15分)

その他

  • 御穂神社

    約250m(徒歩4分)

  • 東海大学付属図書館清水図書館

    約1,400m(徒歩18分)

価格

価格 798万円

ローンシミュレーション

この物件を購入した場合の、
月々の支払い価格の一例です。

返済例 1

ボーナス併用プラン

毎月返済
ボーナス月加算額
(1回)
返済例 2

ボーナスなしプラン

毎月返済
ボーナス月加算額
(1回)
0
  • 借入額 万円
  • 頭金 万円
  • 変動金利(年利) %
  • 返済期間

※ボーナスは年2回で計算しています。

※別途諸経費が必要となります。

※その他の資金計画のシミュレーションを行いたい場合は「資金計画シミュレーション」をご利用ください。

イベント情報

現地案内会(事前に必ずお問い合わせください)
日程/公開中
■ネットでの予約

物件見学のご予約について、お電話はもちろん、しずなび内の「見学予約」または、「資料請求」ボタンからネット予約も可能です。
ご予約いただけますと、お客様のご都合の良い時間に合わせてご案内が可能です。

毎日ご案内可能ですが、各物件にスタッフが常駐しておりませんのでご連絡頂いてから向かわせて頂いております。
事前にご予約頂ければ、各種資料もご準備いたします。
各ご家庭に沿ったご案内ができるように誠心誠意ご対応いたします。

建物はもちろん、その土地の災害リスク、将来人口予想、周辺環境もレポートを纏めてご案内できます。お気軽にお申し付けください。

■選べるコースもご用意しております。

①ショートコース(10~15分)
主に物件の雰囲気や間取りを見て頂ける軽めコース

②通常コース(30~60分)
物件の内覧+住宅ローン+資金計画、スケジュールや周辺環境等、住宅に購入に関することを様々な角度からご提案させて頂くコース。

③ロングコース(上記以上)
通常コース+他の物件もまとめてみたい方にオススメコース。

中古住宅

【リフォーム中】静岡市清水区三保 5DK 

所在地
静岡県静岡市清水区三保39-7
価格
798万円
間取り
5DK(1階:DK6.5帖、L6帖、和室6帖、6帖 2階:和室6帖、6帖)
物件番号 H-287728

取引有効期限 2025年11月17日
次回更新予定日 2025年11月17日

※本掲載情報と現況に差異がある場合、現況を優先します。掲載物件は売却済あるいは売出中止となる場合もあります。
※価格は物件の代金総額を表示しており、消費税が課税される場合は税込み価格です。 (1000円未満は切り上げ。)
※金利(初期値)は2023年9月1日現在のものです。当社提携銀行によるもので、お客様によって金利が変わる場合もございます。

お気に入りに追加

お気に入り登録者数-

お気に入りって何?画面上部画面下部のボタンからお気に入り物件をいつでも確認できます。また「会員登録」すると、値下げ情報をメールでお知らせします。

お問い合わせの際に、物件番号を
お伝えいただくとスムーズです。

物件番号H-287728
  1. メリット1

    会員優先・
    非公開物件

    の閲覧

  2. メリット2

    新着物件
    先行配信

  3. メリット3

    プライスダウン
    物件
    を先行配信

  4. メリット4

    自分だけの
    マイページ作成

  5. メリット5

    イベント・セミナー・
    お役立ち情報

    お届け