中古住宅
360度パノラマVR付き

清水区殿沢1丁目 ☆富士山を望める戸建☆

外観:敷地の広さがわかります。

外観:敷地の広さがわかります。

外観:屋上に上がることもできます。

外観:屋上に上がることもできます。

2階の和室からの富士山。1階の和室にある掘りごたつからも富士山を望めます。

2階の和室からの富士山。1階の和室にある掘りごたつからも富士山を望めます。

外観:近影

外観:近影

階段を上がると玄関があります。

階段を上がると玄関があります。

観音開きの玄関ドア。

観音開きの玄関ドア。

玄関ホールは吹き抜けになっていて、解放感があります。

玄関ホールは吹き抜けになっていて、解放感があります。

玄関横の和室は二面採光で自然光が入り明るいです。

玄関横の和室は二面採光で自然光が入り明るいです。

27帖の広々としたLDKは、大きな掃き出し窓が造られています。

27帖の広々としたLDKは、大きな掃き出し窓が造られています。

LDKと和室の間には中庭があり、バーベキューをしたり、水遊びをしたりできます。

LDKと和室の間には中庭があり、バーベキューをしたり、水遊びをしたりできます。

LDK横の堀こたつ付き和室。堀こたつに入りながら「富士山」を眺められるように造られついます。

LDK横の堀こたつ付き和室。
堀こたつに入りながら「富士山」を眺められるように造られついます。

LDK横の和室からの富士山。

LDK横の和室からの富士山。

コの字型のキッチンは作業スペースが広くて使い勝手が良さそうです。

コの字型のキッチンは作業スペースが広くて使い勝手が良さそうです。

キッチン横には洗面所と行き来ができる「家事室」があります。

キッチン横には洗面所と行き来ができる「家事室」があります。

家事室の横には洗面所があります。

家事室の横には洗面所があります。

浴室は2面採光でジャグジー付き。

浴室は2面採光でジャグジー付き。

1階トイレ。

1階トイレ。

2階廊下も広々としています。

2階廊下も広々としています。

2階和室、このお部屋からも富士山を眺めることができます。

2階和室、このお部屋からも富士山を眺めることができます。

2階の和室からの富士山。

2階の和室からの富士山。

ラウンジからの富士山。

ラウンジからの富士山。

ラウンジ横に寝室16.6帖があります。

ラウンジ横に寝室16.6帖があります。

寝室の納戸。

寝室の納戸。

寝室に面するバルコニーはワイド。水栓もあります。

寝室に面するバルコニーはワイド。水栓もあります。

寝室の納戸。

寝室の納戸。

3面採光の明るいお部屋です。トレーニングルームとして使用するため床は頑丈なものになっています。

3面採光の明るいお部屋です。トレーニングルームとして使用するため床は頑丈なものになっています。

トレーニングルームに面するバルコニーからは屋上に上がることもできます。

トレーニングルームに面するバルコニーからは屋上に上がることもできます。

2階納戸

2階納戸

2階トイレ。

2階トイレ。

階段を降りると地階の玄関があります。

階段を降りると地階の玄関があります。

ガレージには物入1つ、納戸が3つあります。

ガレージには物入1つ、納戸が3つあります。

床・クロスが貼られている、地階玄関横の納戸。

床・クロスが貼られている、地階玄関横の納戸。

ガレージ奥の納戸

ガレージ奥の納戸

ガレージ入って右手の納戸

ガレージ入って右手の納戸

外観:敷地の広さがわかります。
外観:屋上に上がることもできます。
2階の和室からの富士山。1階の和室にある掘りごたつからも富士山を望めます。
外観:近影
階段を上がると玄関があります。
観音開きの玄関ドア。
玄関ホールは吹き抜けになっていて、解放感があります。
玄関横の和室は二面採光で自然光が入り明るいです。
27帖の広々としたLDKは、大きな掃き出し窓が造られています。
LDKと和室の間には中庭があり、バーベキューをしたり、水遊びをしたりできます。
LDK横の堀こたつ付き和室。堀こたつに入りながら「富士山」を眺められるように造られついます。
LDK横の和室からの富士山。
コの字型のキッチンは作業スペースが広くて使い勝手が良さそうです。
キッチン横には洗面所と行き来ができる「家事室」があります。
家事室の横には洗面所があります。
浴室は2面採光でジャグジー付き。
1階トイレ。
2階廊下も広々としています。
2階和室、このお部屋からも富士山を眺めることができます。
2階の和室からの富士山。
ラウンジからの富士山。
ラウンジ横に寝室16.6帖があります。
寝室の納戸。
寝室に面するバルコニーはワイド。水栓もあります。
寝室の納戸。
3面採光の明るいお部屋です。トレーニングルームとして使用するため床は頑丈なものになっています。
トレーニングルームに面するバルコニーからは屋上に上がることもできます。
2階納戸
2階トイレ。
階段を降りると地階の玄関があります。
ガレージには物入1つ、納戸が3つあります。
床・クロスが貼られている、地階玄関横の納戸。
ガレージ奥の納戸
ガレージ入って右手の納戸

この物件の360度パノラマVR

360度パノラマVR内覧なら"いつでもどこでも"実際の内覧に近い体験ができます。

所在地

静岡県静岡市清水区殿沢1-18-8

地図で確認
※地図上に表示される物件の位置は付近住所に所在することを表すものであり、実際の物件所在地とは異なる場合がございます。
交通
しずてつジャストライン「静岡市立清水病院」バス停・・・555m(徒歩約7分)
学区
清水駒越小学校/清水第四中学校
間取り
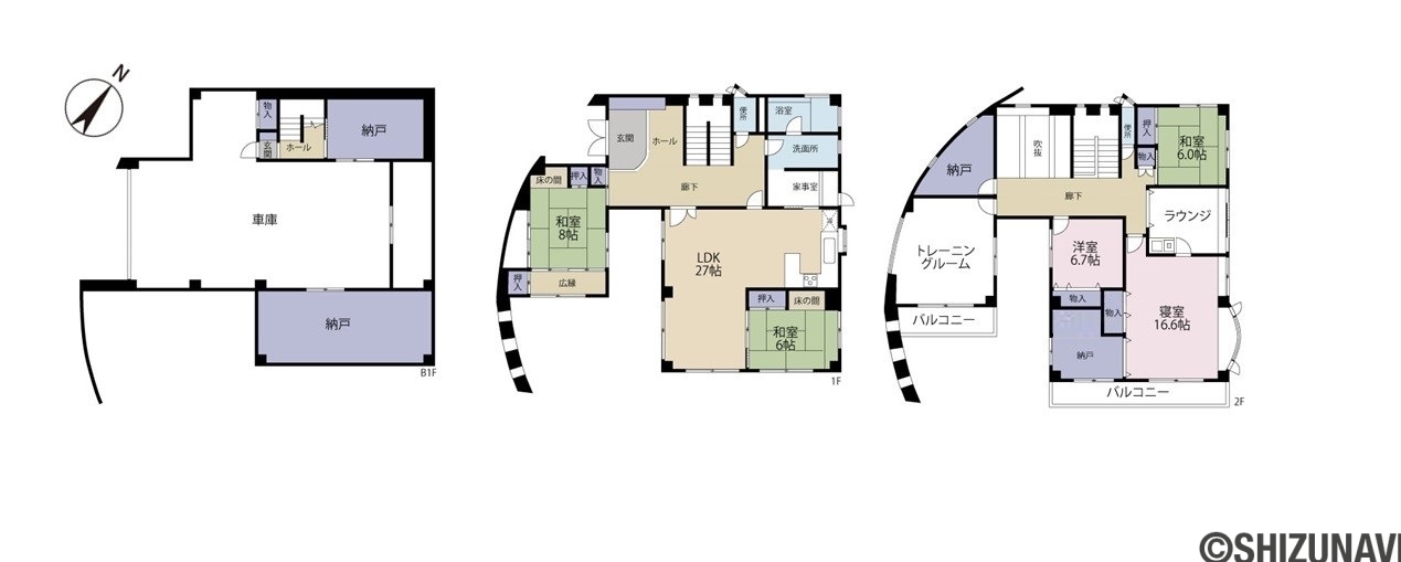
7LDK(地階:ガレージ・納戸×3 1階:LDK27帖、和室8帖、和室6帖 2階:寝室16.6帖、洋室6.7帖、和室6帖、トレーニングルーム、ラウンジ、納戸×2)
築年月
1997年9月(築28年)
建物面積
401.50m2(121.45坪)
土地面積
281.78m2(85.23坪)

リフォーム・リノベーション

内装

2026年1月(完了済)

一部クロス貼替

外装

2026年1月(完了済)

一部補修

お気に入りに追加

お気に入り登録者数-

お気に入りって何?画面上部画面下部のボタンからお気に入り物件をいつでも確認できます。また「会員登録」すると、値下げ情報をメールでお知らせします。

お問い合わせの際に、物件番号を
お伝えいただくとスムーズです。

物件番号H-311273

間取り

間取り 7LDK(地階:ガレージ・納戸×3 1階:LDK27帖、和室8帖、和室6帖 2階:寝室16.6帖、洋室6.7帖、和室6帖、トレーニングルーム、ラウンジ、納戸×2)
建物面積 401.50m2(121.45坪)
土地面積 281.78m2(85.23坪)
掘りごたつに入りながら富士山が眺められるお家です。お部屋数が多く2世帯での居住にも向いています。

◎しずてつジャストライン「静岡市立清水病院」バス停まで555m(徒歩約7分)
◎駒越こども園まで584m(徒歩約8分)
◎清水駒越小学校まで1,600m(徒歩約20分)
◎清水第四中学校まで1,600m(徒歩約20分)
◎ローソン清水宮加三店まで762m(徒歩約10分)
◎ウエルシア清水駒越店まで952m(徒歩約12分)

お気に入りに追加

お気に入り登録者数-

お気に入りって何?画面上部画面下部のボタンからお気に入り物件をいつでも確認できます。また「会員登録」すると、値下げ情報をメールでお知らせします。

お問い合わせの際に、物件番号を
お伝えいただくとスムーズです。

物件番号H-311273

物件の特徴・設備

間取り・広さ LDK20畳以上、全居室6畳以上、主寝室8畳以上、和室
土地 土地80坪以上
室内設備・仕様・収納 納戸
キッチン システムキッチン、食器洗乾燥機
バス・トイレ 浴室乾燥機、浴室1坪以上、浴室に窓付き、追い炊き機能、シャワートイレ
バルコニー・テラス・庭 南庭
日当たり・採光 南向き(南東・南西含む)、2面採光以上
構造・工法・仕様 バリアフリー
駐車場・駐輪場 駐車場2台以上
立地・環境 高台に立地、富士山が見える、閑静な住宅地、緑豊かな住宅地
周辺環境 総合病院 徒歩10分以内、コンビニ 徒歩10分以内
証明書類あり 新築時・増改築時の設計図あり
その他 360度パノラマVR内覧
制限事項 景観法、高度地区
その他制限事項

日影制限有

備考 水回り点検済・ルームクリーニング済

物件詳細情報

前面道路

4m幅(アスファルト舗装)

南西側道路:位置指定道路(一部持分有り) 位置指定道路番号:清-S52-0044 指定年月日:昭和53年3月27日

建物構造 鉄骨造 / 2階建
施工会社 イハラ建成工業株式会社
駐車場 有り(3台台、駐車場代無料)
都市計画 市街化区域
地目 宅地
用途地域 第一種中高層住居専用地域
建ぺい率 60%
容積率 150%
上水道
下水道
ガス・オール電化 都市ガス
現況 空家
引渡 相談
お気に入りに追加

お気に入り登録者数-

お気に入りって何?画面上部画面下部のボタンからお気に入り物件をいつでも確認できます。また「会員登録」すると、値下げ情報をメールでお知らせします。

お問い合わせの際に、物件番号を
お伝えいただくとスムーズです。

物件番号H-311273

周辺環境

交通機関

  • しずてつジャストライン「静岡市立清水病院」バス停

    約555m(徒歩7分)

ショッピング

  • ローソン清水宮加三店

    約762m(徒歩10分)

  • ウエルシア清水駒越店

    約952m(徒歩12分)

  • ベイドリーム清水

    約1,600m(徒歩20分)

  • 業務スーパー清水駒越店

    約1,800m(徒歩23分)

教育機関

  • 駒越こども園

    約584m(徒歩8分)

  • 清水駒越小学校

    約1,600m(徒歩20分)

  • 清水第四中学校

    約1,600m(徒歩20分)

医療機関

  • 静岡市立清水病院

    約582m(徒歩8分)

  • 宇山医院

    約652m(徒歩9分)

  • 阪部循環器内科 内科・産婦人科クリニック

    約1,200m(徒歩15分)

公共施設

  • 忠霊塔公園

    約610m(徒歩8分)

  • 清水警察署駒越交番

    約762m(徒歩10分)

  • 清水区駒越市民サービスセンター

    約772m(徒歩10分)

価格

価格 5,280万円

ローンシミュレーション

この物件を購入した場合の、
月々の支払い価格の一例です。

返済例 1

ボーナス併用プラン

毎月返済
ボーナス月加算額
(1回)
返済例 2

ボーナスなしプラン

毎月返済
ボーナス月加算額
(1回)
0
  • 借入額 万円
  • 頭金 万円
  • 変動金利(年利) %
  • 返済期間

※ボーナスは年2回で計算しています。

※別途諸経費が必要となります。

※その他の資金計画のシミュレーションを行いたい場合は「資金計画シミュレーション」をご利用ください。

イベント情報

現地案内会(事前に必ずお問い合わせください)
日程/公開中
■ネットでの予約

物件見学のご予約について、お電話はもちろん、しずなび内の「見学予約」または、「資料請求」ボタンからネット予約も可能です。
ご予約いただけますと、お客様のご都合の良い時間に合わせてご案内が可能です。

毎日ご案内可能ですが、各物件にスタッフが常駐しておりませんのでご連絡頂いてから向かわせて頂いております。
事前にご予約頂ければ、各種資料もご準備いたします。
各ご家庭に沿ったご案内ができるように誠心誠意ご対応いたします。

建物はもちろん、その土地の災害リスク、将来人口予想、周辺環境もレポートを纏めてご案内できます。お気軽にお申し付けください。

■選べるコースもご用意しております。

①ショートコース(10~15分)
主に物件の雰囲気や間取りを見て頂ける軽めコース

②通常コース(30~60分)
物件の内覧+住宅ローン+資金計画、スケジュールや周辺環境等、住宅に購入に関することを様々な角度からご提案させて頂くコース。

③ロングコース(上記以上)
通常コース+他の物件もまとめてみたい方にオススメコース。

中古住宅

清水区殿沢1丁目 ☆富士山を望める戸建☆

所在地
静岡県静岡市清水区殿沢1-18-8
価格
5,280万円
間取り
7LDK(地階:ガレージ・納戸×3 1階:LDK27帖、和室8帖、和室6帖 2階:寝室16.6帖、洋室6.7帖、和室6帖、トレーニングルーム、ラウンジ、納戸×2)
物件番号 H-311273

取引有効期限 2026年05月16日
次回更新予定日 2026年05月16日

※本掲載情報と現況に差異がある場合、現況を優先します。掲載物件は売却済あるいは売出中止となる場合もあります。
※価格は物件の代金総額を表示しており、消費税が課税される場合は税込み価格です。 (1000円未満は切り上げ。)
※金利(初期値)は2026年4月1日現在のものです。当社提携銀行によるもので、お客様によって金利が変わる場合もございます。

お気に入りに追加

お気に入り登録者数-

お気に入りって何?画面上部画面下部のボタンからお気に入り物件をいつでも確認できます。また「会員登録」すると、値下げ情報をメールでお知らせします。

お問い合わせの際に、物件番号を
お伝えいただくとスムーズです。

物件番号H-311273
  1. メリット1

    会員優先・
    非公開物件

    の閲覧

  2. メリット2

    新着物件
    先行配信

  3. メリット3

    プライスダウン
    物件
    を先行配信

  4. メリット4

    自分だけの
    マイページ作成

  5. メリット5

    イベント・セミナー・
    お役立ち情報

    お届け