中古住宅

浜松市浜名区宮口 4DK 高台エリアで落ち着いた暮らし

所在地

静岡県浜松市浜名区宮口146-30

地図で確認
※地図上に表示される物件の位置は付近住所に所在することを表すものであり、実際の物件所在地とは異なる場合がございます。
交通
天龍浜名湖線/宮口駅より徒歩約12分 約950m
学区
浜松市立麁玉小学校/浜松市立麁玉中学校
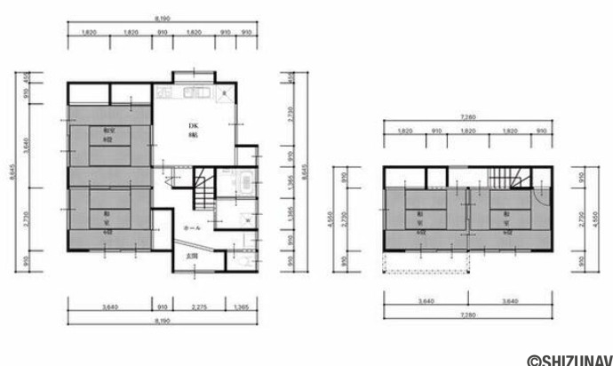
間取り
4DK(ダイニングキッチン、和室×4)
築年月
1985年1月(築41年)
建物面積
86.94m2(26.29坪)
土地面積
223.44m2(67.59坪)
お気に入りに追加

お気に入り登録者数-

お気に入りって何?画面上部画面下部のボタンからお気に入り物件をいつでも確認できます。また「会員登録」すると、値下げ情報をメールでお知らせします。

お問い合わせの際に、物件番号を
お伝えいただくとスムーズです。

物件番号H-323791

間取り

間取り 4DK(ダイニングキッチン、和室×4)
建物面積 86.94m2(26.29坪)
土地面積 223.44m2(67.59坪)
1000万以下で4LDKの戸建て住宅が手に入る!のんびりのどかな環境でゆったりした時間が過ごせます。
お気に入りに追加

お気に入り登録者数-

お気に入りって何?画面上部画面下部のボタンからお気に入り物件をいつでも確認できます。また「会員登録」すると、値下げ情報をメールでお知らせします。

お問い合わせの際に、物件番号を
お伝えいただくとスムーズです。

物件番号H-323791

物件の特徴・設備

間取り・広さ 和室
土地 土地50坪以上、土地60坪以上
室内設備・仕様・収納 床下収納
バス・トイレ 浴室に窓付き
駐車場・駐輪場 駐車場2台以上
立地・環境 高台に立地、閑静な住宅地、緑豊かな住宅地
その他 即入居可

物件詳細情報

前面道路

3.5m幅(アスファルト舗装)

東3.5m 公道 接面3.7m

建物構造 木造 / 2階建
駐車場 有り(3台以上台、駐車場代無料)
都市計画 市街化調整区域
地目 宅地
用途地域 無指定
建ぺい率 60%
容積率 200%
土地権利 所有権
上水道
下水道
現況 空家
引渡 相談
お気に入りに追加

お気に入り登録者数-

お気に入りって何?画面上部画面下部のボタンからお気に入り物件をいつでも確認できます。また「会員登録」すると、値下げ情報をメールでお知らせします。

お問い合わせの際に、物件番号を
お伝えいただくとスムーズです。

物件番号H-323791

周辺環境

交通機関

  • 天龍浜名湖線/宮口

    約950m(徒歩12分)

ショッピング

  • ファミリーマート浜北宮口店

    約1,005m(徒歩13分)

  • ピアゴ於呂店

    約2,603m(徒歩33分)

  • スーパーこでら 赤佐店

    約3,200m(徒歩40分)

  • フードマーケット マム 浜北店

    約4,000m(徒歩50分)

  • マックスバリュ浜北中瀬店

    約4,100m(徒歩52分)

教育機関

  • 宮口幼稚園

    約1,400m(徒歩18分)

  • 浜松市立麁玉小学校

    約822m(徒歩11分)

  • 浜松市立麁玉中学校

    約737m(徒歩10分)

医療機関

  • 宮口こんどうクリニック

    約1,100m(徒歩14分)

  • 医療法人社団誠心会浜北さくら台病院

    約1,648m(徒歩21分)

  • 氏原歯科

    約1,500m(徒歩19分)

公共施設

  • 上の前公園

    約450m(徒歩6分)

  • 浜北警察署 宮口警察官駐在所

    約1,600m(徒歩20分)

  • 中瀬協働センター

    約4,500m(徒歩57分)

その他

  • 浜北宮口郵便局

    約1,000m(徒歩13分)

  • JAとぴあ浜松 麁玉支店

    約1,200m(徒歩15分)

  • 日帰り天然温泉 あらたまの湯

    約1,800m(徒歩23分)

価格

価格 998万円

ローンシミュレーション

この物件を購入した場合の、
月々の支払い価格の一例です。

返済例 1

ボーナス併用プラン

毎月返済
ボーナス月加算額
(1回)
返済例 2

ボーナスなしプラン

毎月返済
ボーナス月加算額
(1回)
0
  • 借入額 万円
  • 頭金 万円
  • 変動金利(年利) %
  • 返済期間

※ボーナスは年2回で計算しています。

※別途諸経費が必要となります。

※その他の資金計画のシミュレーションを行いたい場合は「資金計画シミュレーション」をご利用ください。

イベント情報

現地案内会(事前に必ずお問い合わせください)
日程/公開中
■ネットでの予約

物件見学のご予約について、お電話はもちろん、しずなび内の「見学予約」または、「資料請求」ボタンからネット予約も可能です。
ご予約いただけますと、お客様のご都合の良い時間に合わせてご案内が可能です。

毎日ご案内可能ですが、各物件にスタッフが常駐しておりませんのでご連絡頂いてから向かわせて頂いております。
事前にご予約頂ければ、各種資料もご準備いたします。
各ご家庭に沿ったご案内ができるように誠心誠意ご対応いたします。

建物はもちろん、その土地の災害リスク、将来人口予想、周辺環境もレポートを纏めてご案内できます。お気軽にお申し付けください。

■選べるコースもご用意しております。

①ショートコース(10~15分)
主に物件の雰囲気や間取りを見て頂ける軽めコース

②通常コース(30~60分)
物件の内覧+住宅ローン+資金計画、スケジュールや周辺環境等、住宅に購入に関することを様々な角度からご提案させて頂くコース。

③ロングコース(上記以上)
通常コース+他の物件もまとめてみたい方にオススメコース。

中古住宅

浜松市浜名区宮口 4DK 高台エリアで落ち着いた暮らし

所在地
静岡県浜松市浜名区宮口146-30
価格
998万円
間取り
4DK(ダイニングキッチン、和室×4)
物件番号 H-323791

取引有効期限 2026年05月30日
次回更新予定日 2026年05月30日

※本掲載情報と現況に差異がある場合、現況を優先します。掲載物件は売却済あるいは売出中止となる場合もあります。
※価格は物件の代金総額を表示しており、消費税が課税される場合は税込み価格です。 (1000円未満は切り上げ。)
※金利(初期値)は2026年4月1日現在のものです。当社提携銀行によるもので、お客様によって金利が変わる場合もございます。

お気に入りに追加

お気に入り登録者数-

お気に入りって何?画面上部画面下部のボタンからお気に入り物件をいつでも確認できます。また「会員登録」すると、値下げ情報をメールでお知らせします。

お問い合わせの際に、物件番号を
お伝えいただくとスムーズです。

物件番号H-323791
  1. メリット1

    会員優先・
    非公開物件

    の閲覧

  2. メリット2

    新着物件
    先行配信

  3. メリット3

    プライスダウン
    物件
    を先行配信

  4. メリット4

    自分だけの
    マイページ作成

  5. メリット5

    イベント・セミナー・
    お役立ち情報

    お届け