中古住宅
360度パノラマVR付き

【リフォーム予定】藤枝市岡部町三輪 中古住宅

この物件の360度パノラマVR

360度パノラマVR内覧なら"いつでもどこでも"実際の内覧に近い体験ができます。

所在地

静岡県藤枝市岡部町三輪1359-6

地図で確認
※地図上に表示される物件の位置は付近住所に所在することを表すものであり、実際の物件所在地とは異なる場合がございます。
交通
しずてつジャストライン/三輪神社入口まで399m
学区
岡部小学校/岡部中学校
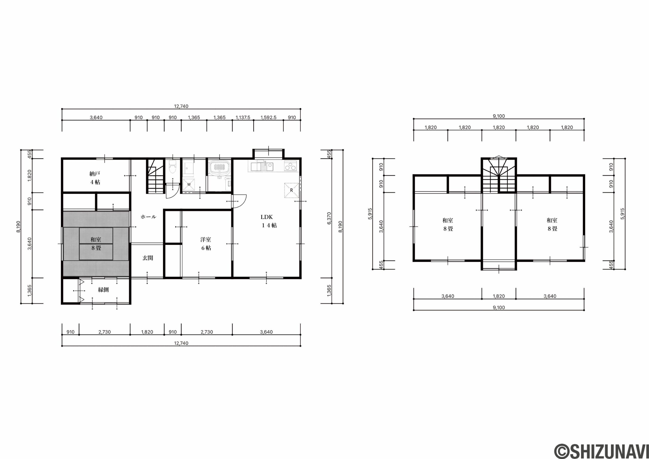
間取り
4SLDK
築年月
1990年9月(築35年)
建物面積
129.16m2(39.07坪)
土地面積
229.10m2(69.3坪)
お気に入りに追加

お気に入り登録者数-

お気に入りって何?画面上部画面下部のボタンからお気に入り物件をいつでも確認できます。また「会員登録」すると、値下げ情報をメールでお知らせします。

お問い合わせの際に、物件番号を
お伝えいただくとスムーズです。

物件番号H-324441

間取り

間取り 4SLDK
建物面積 129.16m2(39.07坪)
土地面積 229.10m2(69.3坪)
陽当り良好な古民家風な住宅です

・土地面積:229.10㎡(69.30坪)建物面積:129.16㎡(39.07坪)
・平成2年(1990年)築 木造2階建て住宅
・カーポート付きの駐車場です。並列2台駐車可能
・陽当り良好です。
・納戸もあり、収納豊富な住宅です
・シロアリ被害に対する処置と防蟻処理は売主にて対応

お気に入りに追加

お気に入り登録者数-

お気に入りって何?画面上部画面下部のボタンからお気に入り物件をいつでも確認できます。また「会員登録」すると、値下げ情報をメールでお知らせします。

お問い合わせの際に、物件番号を
お伝えいただくとスムーズです。

物件番号H-324441

物件の特徴・設備

間取り・広さ LDK12畳以上、和室
土地 土地60坪以上
室内設備・仕様・収納 納戸
バス・トイレ 浴室に窓付き、追い炊き機能
駐車場・駐輪場 駐車場2台以上
立地・環境 整形地、閑静な住宅地
その他 360度パノラマVR内覧

物件詳細情報

建物構造 木造 / 2階建
駐車場 有り(駐車場代無料)
都市計画 市街化区域
地目 宅地
用途地域 第一種低層住居専用地域
建ぺい率 60%
容積率 100%
土地権利 所有権
現況 空家
引渡 相談
お気に入りに追加

お気に入り登録者数-

お気に入りって何?画面上部画面下部のボタンからお気に入り物件をいつでも確認できます。また「会員登録」すると、値下げ情報をメールでお知らせします。

お問い合わせの際に、物件番号を
お伝えいただくとスムーズです。

物件番号H-324441

周辺環境

交通機関

  • 東海道本線/焼津駅 北口

    約4,100m(徒歩52分)

  • 東海道本線/西焼津駅 北口

    約5,800m(徒歩73分)

  • しずてつジャストライン/三輪神社入口

    約399m(徒歩5分)

ショッピング

  • ファミリーマート藤枝岡部町店

    約539m(徒歩7分)

  • しずてつストア岡部店

    約1,600m(徒歩20分)

  • ウエルシア藤枝岡部店

    約1,400m(徒歩18分)

  • マム坂本店

    約2,100m(徒歩27分)

  • ベルカント

    約5,300m(徒歩67分)

教育機関

  • 岡部小学校

    約2,000m(徒歩25分)

  • 岡部中学校

    約3,500m(徒歩44分)

医療機関

  • 焼津病院

    約529m(徒歩7分)

  • 志太三輪医院

    約2,400m(徒歩30分)

  • モチヅキおかべ歯科クリニック

    約1,700m(徒歩22分)

公共施設

  • 内谷三輪公園

    約675m(徒歩9分)

  • 藤枝市岡部支所

    約2,300m(徒歩29分)

その他

  • 岡部郵便局

    約2,200m(徒歩28分)

  • スルガ銀行岡部支店

    約1,900m(徒歩24分)

  • JA大井川岡部

    約1,900m(徒歩24分)

価格

価格 1,648万円

ローンシミュレーション

この物件を購入した場合の、
月々の支払い価格の一例です。

返済例 1

ボーナス併用プラン

毎月返済
ボーナス月加算額
(1回)
返済例 2

ボーナスなしプラン

毎月返済
ボーナス月加算額
(1回)
0
  • 借入額 万円
  • 頭金 万円
  • 変動金利(年利) %
  • 返済期間

※ボーナスは年2回で計算しています。

※別途諸経費が必要となります。

※その他の資金計画のシミュレーションを行いたい場合は「資金計画シミュレーション」をご利用ください。

イベント情報

現地案内会(事前に必ずお問い合わせください)
日程/公開中
■ネットでの予約

物件見学のご予約について、お電話はもちろん、しずなび内の「見学予約」または、「資料請求」ボタンからネット予約も可能です。
ご予約いただけますと、お客様のご都合の良い時間に合わせてご案内が可能です。

毎日ご案内可能ですが、各物件にスタッフが常駐しておりませんのでご連絡頂いてから向かわせて頂いております。
事前にご予約頂ければ、各種資料もご準備いたします。
各ご家庭に沿ったご案内ができるように誠心誠意ご対応いたします。

建物はもちろん、その土地の災害リスク、将来人口予想、周辺環境もレポートを纏めてご案内できます。お気軽にお申し付けください。

■選べるコースもご用意しております。

①ショートコース(10~15分)
主に物件の雰囲気や間取りを見て頂ける軽めコース

②通常コース(30~60分)
物件の内覧+住宅ローン+資金計画、スケジュールや周辺環境等、住宅に購入に関することを様々な角度からご提案させて頂くコース。

③ロングコース(上記以上)
通常コース+他の物件もまとめてみたい方にオススメコース。

中古住宅

【リフォーム予定】藤枝市岡部町三輪 中古住宅

所在地
静岡県藤枝市岡部町三輪1359-6
価格
1,648万円
間取り
4SLDK
物件番号 H-324441

取引有効期限 2026年06月08日
次回更新予定日 2026年06月08日

※本掲載情報と現況に差異がある場合、現況を優先します。掲載物件は売却済あるいは売出中止となる場合もあります。
※価格は物件の代金総額を表示しており、消費税が課税される場合は税込み価格です。 (1000円未満は切り上げ。)
※金利(初期値)は2026年4月1日現在のものです。当社提携銀行によるもので、お客様によって金利が変わる場合もございます。

お気に入りに追加

お気に入り登録者数-

お気に入りって何?画面上部画面下部のボタンからお気に入り物件をいつでも確認できます。また「会員登録」すると、値下げ情報をメールでお知らせします。

お問い合わせの際に、物件番号を
お伝えいただくとスムーズです。

物件番号H-324441
  1. メリット1

    会員優先・
    非公開物件

    の閲覧

  2. メリット2

    新着物件
    先行配信

  3. メリット3

    プライスダウン
    物件
    を先行配信

  4. メリット4

    自分だけの
    マイページ作成

  5. メリット5

    イベント・セミナー・
    お役立ち情報

    お届け