土地

◇建物参考プラン掲載中◇ 駿河区向敷地3丁目 売土地

価格
870万円
( 坪単価 32.32万円/坪 )
所在地

静岡県静岡市駿河区向敷地3丁目22-30

地図で確認
※地図上に表示される物件の位置は付近住所に所在することを表すものであり、実際の物件所在地とは異なる場合がございます。
交通
しずてつジャストライン「るり幼稚園」徒歩約650m(徒歩約9分)
学区
長田北小学校/長田西中学校
土地面積
89.00m2(26.92坪)
販売区画数
1区画
総区画数
1区画
建築条件
なし
建ぺい率
60%
容積率
160%
お気に入りに追加

お気に入り登録者数-

お気に入りって何?画面上部画面下部のボタンからお気に入り物件をいつでも確認できます。また「会員登録」すると、値下げ情報をメールでお知らせします。

お問い合わせの際に、物件番号を
お伝えいただくとスムーズです。

物件番号L-213720

区画

土地面積 89.00m2(26.92坪)
建ぺい率 60%
容積率 160%
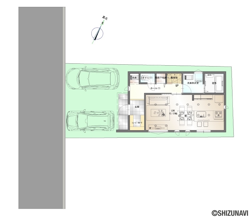
閑静な住宅街の立地。おだやなか環境で生活が送れます。
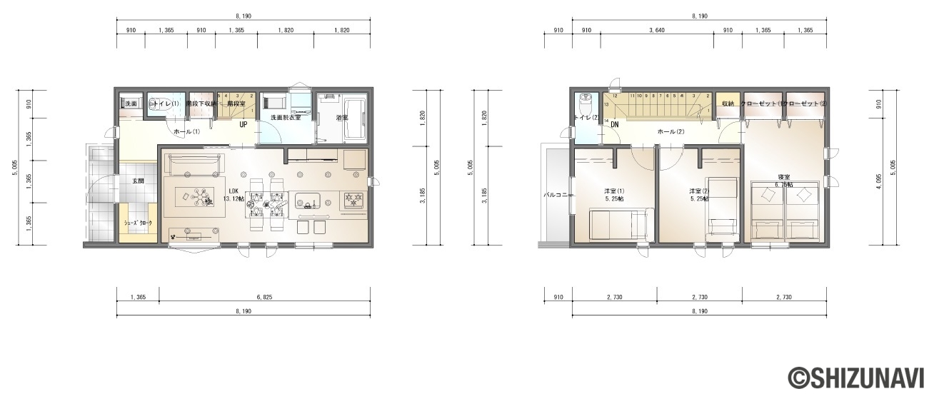
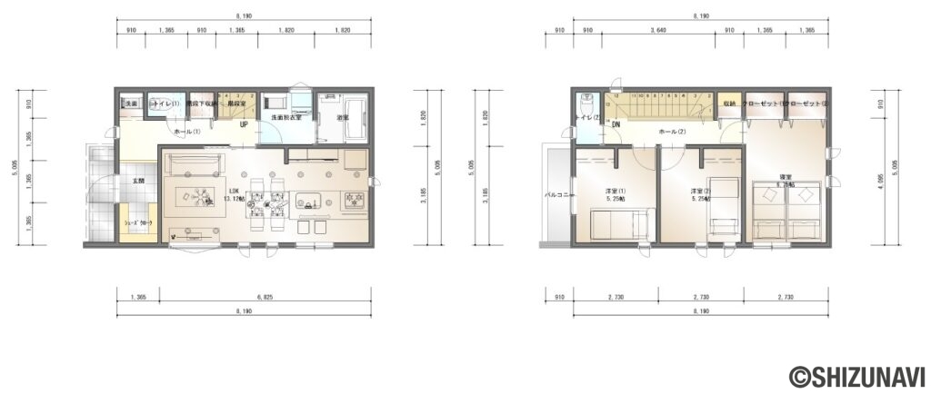
  • 耐震等級3級、断熱等級5以上、長期優良住宅等想定の建物参考プラン掲載中です!
  • 上記は協力会社の参考プランの一例のため建築条件はございません!
  • 建築計画が立てやすい長方形の整形地です!
  • 建物は解体後、更地にてお引渡しさせていただきます!
  • 測量後のお引渡しですので、隣地との境界についてもご安心いただけます!
  • 閑静な住宅地の立地です!静かな環境をお求めの方におすすめ!
  • 徒歩10分圏内に小学校、バス停、お買い物施設があり利便性の高い立地です!
  • 公園まで徒歩約230mですのでファミリー層の方にもおすすめです!
  • ※現在居住中につき、現地確認につきましてはご留意の上、お願い致します
  • ※売主様お引越し後に建物解体等実施するため引渡し時期については相談させてください。
お気に入りに追加

お気に入り登録者数-

お気に入りって何?画面上部画面下部のボタンからお気に入り物件をいつでも確認できます。また「会員登録」すると、値下げ情報をメールでお知らせします。

お問い合わせの際に、物件番号を
お伝えいただくとスムーズです。

物件番号L-213720

物件の特徴・設備

土地 建築条件なし
設備 都市ガス、本下水、上水道
立地・環境 整形地、閑静な住宅地
周辺環境 スーパー 徒歩10分以内、小学校 徒歩10分以内、バス停 徒歩10分以内、コンビニ 徒歩10分以内
制限事項 景観法、高度地区
その他制限事項

日影制限有

物件詳細情報

前面道路

4.0m幅(アスファルト舗装)

都市計画 市街化区域
地目
用途地域 第一種住居地域
土地権利 所有権
上水道
下水道
ガス 都市ガス
現況 古家あり
引渡 即時
お気に入りに追加

お気に入り登録者数-

お気に入りって何?画面上部画面下部のボタンからお気に入り物件をいつでも確認できます。また「会員登録」すると、値下げ情報をメールでお知らせします。

お問い合わせの際に、物件番号を
お伝えいただくとスムーズです。

物件番号L-213720

周辺環境

交通機関

  • しずてつジャストライン「ゆり幼稚園」バス停

    約650m(徒歩9分)

ショッピング

  • スーパーおさだ

    約250m(徒歩4分)

  • セブンイレブン

    約500m(徒歩7分)

  • スギ薬局

    約650m(徒歩9分)

教育機関

  • 長田北小学校

    約700m(徒歩9分)

  • 長田西中学校

    約950m(徒歩12分)

公共施設

  • 長田北向ヶ丘公園

    約230m(徒歩3分)

  • ラウンドワン

    約750m(徒歩10分)

価格

価格 870万円
農地転用申請 地目が「田」のため買主様の方で農地法第5条申請が必要です。

イベント情報

現地案内会(事前に必ずお問い合わせください)
日程/公開中
■ネットでの予約

物件見学のご予約について、お電話はもちろん、しずなび内の「見学予約」または、「資料請求」ボタンからネット予約も可能です。
ご予約いただけますと、お客様のご都合の良い時間に合わせてご案内が可能です。

毎日ご案内可能ですが、各物件にスタッフが常駐しておりませんのでご連絡頂いてから向かわせて頂いております。
事前にご予約頂ければ、各種資料もご準備いたします。
各ご家庭に沿ったご案内ができるように誠心誠意ご対応いたします。

建物はもちろん、その土地の災害リスク、将来人口予想、周辺環境もレポートを纏めてご案内できます。お気軽にお申し付けください。

■選べるコースもご用意しております。

①ショートコース(10~15分)
主に物件の雰囲気や間取りを見て頂ける軽めコース

②通常コース(30~60分)
物件の内覧+住宅ローン+資金計画、スケジュールや周辺環境等、住宅に購入に関することを様々な角度からご提案させて頂くコース。

③ロングコース(上記以上)
通常コース+他の物件もまとめてみたい方にオススメコース。

土地

◇建物参考プラン掲載中◇ 駿河区向敷地3丁目 売土地

所在地
静岡県静岡市駿河区向敷地3丁目22-30
価格
870万円
土地面積
89.00m2(26.92坪)
物件番号 L-213720

取引有効期限 2026年05月01日
次回更新予定日 2026年05月01日

※本掲載情報と現況に差異がある場合、現況を優先します。掲載物件は売却済あるいは売出中止となる場合もあります。
※価格は物件の代金総額を表示しており、消費税が課税される場合は税込み価格です。 (1000円未満は切り上げ。)

お気に入りに追加

お気に入り登録者数-

お気に入りって何?画面上部画面下部のボタンからお気に入り物件をいつでも確認できます。また「会員登録」すると、値下げ情報をメールでお知らせします。

お問い合わせの際に、物件番号を
お伝えいただくとスムーズです。

物件番号L-213720
  1. メリット1

    会員優先・
    非公開物件

    の閲覧

  2. メリット2

    新着物件
    先行配信

  3. メリット3

    プライスダウン
    物件
    を先行配信

  4. メリット4

    自分だけの
    マイページ作成

  5. メリット5

    イベント・セミナー・
    お役立ち情報

    お届け