新価格
マンション
中古マンション

【リフォーム済】よいち住宅団地S-5 406

価格
管理費(月額)
2,300円
修繕積立金(月額)
10,000円
所在地

静岡県静岡市葵区与一5-23-5

地図で確認
※地図上に表示される物件の位置は付近住所に所在することを表すものであり、実際の物件所在地とは異なる場合がございます。
交通
しずてつジャストライン「御新田上」/750m
静岡鉄道静岡清水線「新静岡」/5200m
学区
美和小学校/籠上中学校
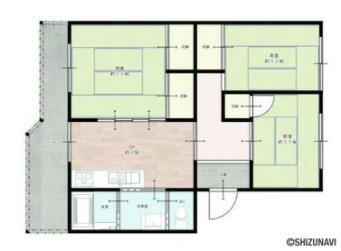
間取り
3DK(DK7帖、和室7.5帖、5.5帖、5.5帖)
築年月
1976年6月(築49年)
専有面積
59.02m2(17.85坪)(壁芯)
バルコニー面積
-
専用庭面積
-
お気に入りに追加

お気に入り登録者数-

お気に入りって何?画面上部画面下部のボタンからお気に入り物件をいつでも確認できます。また「会員登録」すると、値下げ情報をメールでお知らせします。

お問い合わせの際に、物件番号を
お伝えいただくとスムーズです。

物件番号M-284189

間取り

間取り 3DK(DK7帖、和室7.5帖、5.5帖、5.5帖)
専有面積 59.02m2
ペット相談 団地最上階 3DK

■リフォーム済
■付属建物あり
種類:物置
構造:静岡市与一5-335-106 
コンクリートブロック造亜鉛メッキ鋼板葺平屋
建床面積33.60㎡ コンクリートブロック造亜鉛メッキ鋼板葺平屋建、床面積2.31㎡
日付:平成1年11月20日変更
■共益費:700円/月

お気に入りに追加

お気に入り登録者数-

お気に入りって何?画面上部画面下部のボタンからお気に入り物件をいつでも確認できます。また「会員登録」すると、値下げ情報をメールでお知らせします。

お問い合わせの際に、物件番号を
お伝えいただくとスムーズです。

物件番号M-284189

物件の特徴・設備

階・フロア 2階以上
間取り・広さ 和室
駐車場・駐輪場 バイク置場、駐輪場
周辺環境 バス停 徒歩10分以内、コンビニ 徒歩10分以内
その他 ペット相談

物件詳細情報

マンション名 よいち住宅団地S-5 406
所在階/階数 4階/4階建
構造 RC(鉄筋コンクリート)
管理形態 自主管理
駐車場 有り(駐車場代無料)
ペット 相談
用途地域 第二種中高層住居専用地域
土地権利 所有権
現況 空家
引渡 相談
お気に入りに追加

お気に入り登録者数-

お気に入りって何?画面上部画面下部のボタンからお気に入り物件をいつでも確認できます。また「会員登録」すると、値下げ情報をメールでお知らせします。

お問い合わせの際に、物件番号を
お伝えいただくとスムーズです。

物件番号M-284189

周辺環境

交通機関

  • しずてつバス「御新田上」

    約750m(徒歩10分)

ショッピング

  • ローソン静岡上伝馬店

    約750m(徒歩10分)

  • しずてつストアいろは店

    約1,250m(徒歩16分)

  • 杏林堂薬局静岡松富店

    約790m(徒歩10分)

教育機関

  • 美和小学校

    約4,300m(徒歩54分)

  • 籠上中学校

    約2,500m(徒歩32分)

医療機関

  • 静岡県立総合病院

    約3,200m(徒歩40分)

その他

  • 静岡松富郵便局

    約1,100m(徒歩14分)

  • 市立北部図書館

    約1,140m(徒歩15分)

価格

価格 498万円
管理費(月額) 2,300円
修繕積立金(月額) 10,000円
駐車場 有り(駐車場代無料)
バイク置場/月 200
駐輪場/月 100

ローンシミュレーション

この物件を購入した場合の、
月々の支払い価格の一例です。

返済例 1

ボーナス併用プラン

毎月返済
ボーナス月加算額
(1回)
返済例 2

ボーナスなしプラン

毎月返済
ボーナス月加算額
(1回)
0
  • 借入額 万円
  • 頭金 万円
  • 変動金利(年利) %
  • 返済期間

※ボーナスは年2回で計算しています。

※別途諸経費が必要となります。

※その他の資金計画のシミュレーションを行いたい場合は「資金計画シミュレーション」をご利用ください。

イベント情報

現地案内会(事前に必ずお問い合わせください)
日程/公開中
■ネットでの予約

物件見学のご予約について、お電話はもちろん、しずなび内の「見学予約」または、「資料請求」ボタンからネット予約も可能です。
ご予約いただけますと、お客様のご都合の良い時間に合わせてご案内が可能です。

毎日ご案内可能ですが、各物件にスタッフが常駐しておりませんのでご連絡頂いてから向かわせて頂いております。
事前にご予約頂ければ、各種資料もご準備いたします。
各ご家庭に沿ったご案内ができるように誠心誠意ご対応いたします。

建物はもちろん、その土地の災害リスク、将来人口予想、周辺環境もレポートを纏めてご案内できます。お気軽にお申し付けください。

■選べるコースもご用意しております。

①ショートコース(10~15分)
主に物件の雰囲気や間取りを見て頂ける軽めコース

②通常コース(30~60分)
物件の内覧+住宅ローン+資金計画、スケジュールや周辺環境等、住宅に購入に関することを様々な角度からご提案させて頂くコース。

③ロングコース(上記以上)
通常コース+他の物件もまとめてみたい方にオススメコース。

マンション
中古マンション

【リフォーム済】よいち住宅団地S-5 406

所在地
静岡県静岡市葵区与一5-23-5
価格
498万円
間取り
3DK(DK7帖、和室7.5帖、5.5帖、5.5帖)
物件番号 M-284189

取引有効期限 2025年12月26日
次回更新予定日 2025年12月26日

※本掲載情報と現況に差異がある場合、現況を優先します。掲載物件は売却済あるいは売出中止となる場合もあります。
※価格は物件の代金総額を表示しており、消費税が課税される場合は税込み価格です。 (1000円未満は切り上げ。)
※金利(初期値)は2023年9月1日現在のものです。当社提携銀行によるもので、お客様によって金利が変わる場合もございます。

お気に入りに追加

お気に入り登録者数-

お気に入りって何?画面上部画面下部のボタンからお気に入り物件をいつでも確認できます。また「会員登録」すると、値下げ情報をメールでお知らせします。

お問い合わせの際に、物件番号を
お伝えいただくとスムーズです。

物件番号M-284189
  1. メリット1

    会員優先・
    非公開物件

    の閲覧

  2. メリット2

    新着物件
    先行配信

  3. メリット3

    プライスダウン
    物件
    を先行配信

  4. メリット4

    自分だけの
    マイページ作成

  5. メリット5

    イベント・セミナー・
    お役立ち情報

    お届け