マンション
中古マンション
360度パノラマVR付き

ナイスアーバン富士東館 3階角部屋 3LDK

この物件の360度パノラマVR

360度パノラマVR内覧なら"いつでもどこでも"実際の内覧に近い体験ができます。

価格
管理費(月額)
11,910円
修繕積立金(月額)
13,500円
所在地

静岡県富士市国久保二丁目11-16

地図で確認
※地図上に表示される物件の位置は付近住所に所在することを表すものであり、実際の物件所在地とは異なる場合がございます。
交通
富士急静岡バス「西国久保」約140m(徒歩約2分)
学区
富士市立吉原小学校小学校/富士市立吉原第一中学校中学校
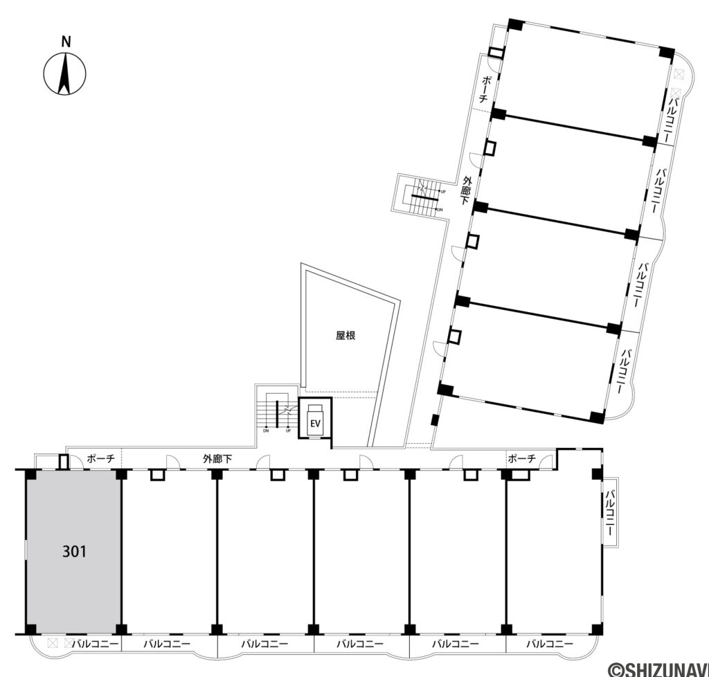
間取り
3LDK(リビングダイニング約11.1帖・キッチン約2.7帖・洋室約6.2帖・洋室約4.5帖・和室約6帖)
築年月
1995年10月(築30年)
専有面積
67.41m2(20.39坪)(壁芯)
バルコニー面積
7.79m2(2.35坪)
専用庭面積
-
お気に入りに追加

お気に入り登録者数-

お気に入りって何?画面上部画面下部のボタンからお気に入り物件をいつでも確認できます。また「会員登録」すると、値下げ情報をメールでお知らせします。

お問い合わせの際に、物件番号を
お伝えいただくとスムーズです。

物件番号M-306224

間取り

間取り 3LDK(リビングダイニング約11.1帖・キッチン約2.7帖・洋室約6.2帖・洋室約4.5帖・和室約6帖)
専有面積 67.41m2
バルコニー面積 7.79m2
日当たり通風ともに良好な南向きバルコニー 生活利便性良好な立地の分譲マンション

■ 富士市国久保所在、生活利便性良好な立地の分譲マンション。
■ 角部屋、南向きバルコニーで日当たり通風共に良好です。
■ 玄関外や北側洋室の窓から富士山の眺望も望めます。
■ 間取は「3LDK」と単身者様やご家族様にもオススメです。
■ 令和2年にリフォーム済みの為、室内状態は比較的良好。
■ オートロック、モニター付きインターホンで防犯面も安心。
■ マンション進入路に来客や一時駐車可能なスペースも完備。
■ 徒歩約2分にバス停があり、通勤通学にも便利です。
■ リフォーム工事のご提案も可能です。お気軽にお問合せ下さい。
■ 富士市立吉原小学校、吉原第一中学校が学校区となります。
■ 現在空室の為、お好きなお時間にごゆっくりご内覧可能です。

お気に入りに追加

お気に入り登録者数-

お気に入りって何?画面上部画面下部のボタンからお気に入り物件をいつでも確認できます。また「会員登録」すると、値下げ情報をメールでお知らせします。

お問い合わせの際に、物件番号を
お伝えいただくとスムーズです。

物件番号M-306224

物件の特徴・設備

階・フロア 2階以上、角住戸
30戸以上
間取り・広さ LDK12畳以上、和室
室内設備・仕様・収納 和室有、全居室収納
キッチン システムキッチン、対面式キッチン、食器洗乾燥機
バス・トイレ 追い炊き機能
バルコニー・テラス・庭 南面バルコニー
日当たり・採光 南向き(南東・南西含む)
構造・工法・仕様 RC造
共用部 エレベーター、宅配ボックス
管理・セキュリティ TVモニター付インターフォン、オートロック、防犯カメラ
駐車場・駐輪場 平面式駐車場、バイク置場、駐輪場
立地・環境 富士山が見える
周辺環境 スーパー 徒歩10分以内、バス停 徒歩10分以内、公園 徒歩10分以内
その他 360度パノラマVR内覧
制限事項 文化財保護法、景観法、高度地区
備考 ■ 駐車場の空き状況は2026年1月時点の情報。
■ 空き駐車場は敷地外駐車場となります。

物件詳細情報

マンション名 ナイスアーバン富士東館
総戸数 55戸
所在階/階数 3階/6階建
構造 RC(鉄筋コンクリート)
施工会社 木内建設株式会社
管理形態 全部委託
駐車場 近隣に有り(4台、6,500円)
ペット 不可
用途地域 第一種住居地域
土地権利 所有権
現況 空家
引渡 相談
お気に入りに追加

お気に入り登録者数-

お気に入りって何?画面上部画面下部のボタンからお気に入り物件をいつでも確認できます。また「会員登録」すると、値下げ情報をメールでお知らせします。

お問い合わせの際に、物件番号を
お伝えいただくとスムーズです。

物件番号M-306224

周辺環境

交通機関

  • 富士急静岡バス「西国久保」

    約140m(徒歩2分)

ショッピング

  • マックスバリュエクスプレス富士国久保店

    約270m(徒歩4分)

  • 100えんハウス レモン吉原店

    約180m(徒歩3分)

  • ウエルシア富士国久保店

    約350m(徒歩5分)

  • ミニストップ 富士石坂店

    約400m(徒歩5分)

  • MEGAドン・キホーテUNY 富士吉原店

    約500m(徒歩7分)

教育機関

  • 富士市立吉原小学校

    約1,800m(徒歩23分)

  • 富士市立吉原第一中学校

    約1,100m(徒歩14分)

  • 松の実保育園

    約450m(徒歩6分)

医療機関

  • 小松クリニック

    約300m(徒歩4分)

  • 月岡医院

    約250m(徒歩4分)

  • 源太坂クリニック

    約500m(徒歩7分)

公共施設

  • 富士市役所

    約1,600m(徒歩20分)

  • 富士市立中央図書館

    約1,100m(徒歩14分)

  • 吉原公園

    約750m(徒歩10分)

その他

  • 吉原郵便局

    約600m(徒歩8分)

  • クロスガーデン富士中央

    約1,000m(徒歩13分)

  • 富士宮信用金庫 吉原支店

    約1,000m(徒歩13分)

価格

価格 1,340万円
管理費(月額) 11,910円
修繕積立金(月額) 13,500円
駐車場 近隣に有り(4台、6,500円)
自治会費 900円/月

ローンシミュレーション

この物件を購入した場合の、
月々の支払い価格の一例です。

返済例 1

ボーナス併用プラン

毎月返済
ボーナス月加算額
(1回)
返済例 2

ボーナスなしプラン

毎月返済
ボーナス月加算額
(1回)
0
  • 借入額 万円
  • 頭金 万円
  • 変動金利(年利) %
  • 返済期間

※ボーナスは年2回で計算しています。

※別途諸経費が必要となります。

※その他の資金計画のシミュレーションを行いたい場合は「資金計画シミュレーション」をご利用ください。

マンション
中古マンション

ナイスアーバン富士東館 3階角部屋 3LDK

所在地
静岡県富士市国久保二丁目11-16
価格
1,340万円
間取り
3LDK(リビングダイニング約11.1帖・キッチン約2.7帖・洋室約6.2帖・洋室約4.5帖・和室約6帖)
物件番号 M-306224

取引有効期限 2026年05月16日
次回更新予定日 2026年05月16日

※本掲載情報と現況に差異がある場合、現況を優先します。掲載物件は売却済あるいは売出中止となる場合もあります。
※価格は物件の代金総額を表示しており、消費税が課税される場合は税込み価格です。 (1000円未満は切り上げ。)
※金利(初期値)は2026年4月1日現在のものです。当社提携銀行によるもので、お客様によって金利が変わる場合もございます。

お気に入りに追加

お気に入り登録者数-

お気に入りって何?画面上部画面下部のボタンからお気に入り物件をいつでも確認できます。また「会員登録」すると、値下げ情報をメールでお知らせします。

お問い合わせの際に、物件番号を
お伝えいただくとスムーズです。

物件番号M-306224
  1. メリット1

    会員優先・
    非公開物件

    の閲覧

  2. メリット2

    新着物件
    先行配信

  3. メリット3

    プライスダウン
    物件
    を先行配信

  4. メリット4

    自分だけの
    マイページ作成

  5. メリット5

    イベント・セミナー・
    お役立ち情報

    お届け