浜北コミュニティバス 赤佐中瀬線『遠江病院』バス停 徒歩2分
お気に入り登録者数-人
お気に入りって何?画面上部画面下部のボタンからお気に入り物件をいつでも確認できます。また「会員登録」すると、値下げ情報をメールでお知らせします。
お問い合わせの際に、物件番号を
お伝えいただくとスムーズです。
全体区画図
区画詳細
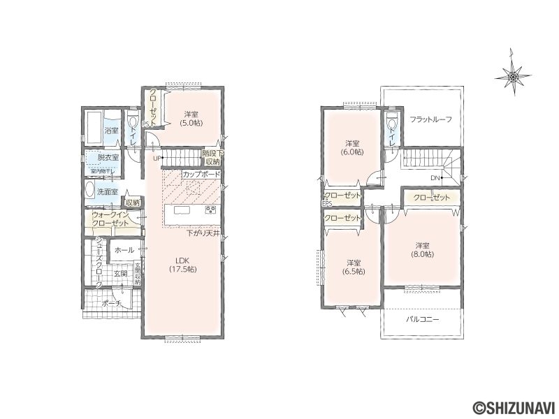
広々とした4LDKの間取り。対面キッチンで家事をしながらの会話もはずみます
光熱費の節約にもなるオール電化住宅
長期優良住宅取得でなおかつ収納豊富
お気に入り登録者数-人
お気に入りって何?画面上部画面下部のボタンからお気に入り物件をいつでも確認できます。また「会員登録」すると、値下げ情報をメールでお知らせします。
お問い合わせの際に、物件番号を
お伝えいただくとスムーズです。
物件の特徴・設備
| 間取り・広さ | LDK12畳以上、LDK15畳以上 |
|---|---|
| 土地 | 土地50坪以上、土地60坪以上、土地70坪以上 |
| 室内設備・仕様・収納 | 全居室収納、ウォークインクローゼット、シューズインクローク |
| キッチン | システムキッチン、対面式キッチン、IHクッキングヒーター |
| バス・トイレ | 浴室乾燥機、浴室1坪以上、浴室に窓付き、追い炊き機能、シャワートイレ |
| バルコニー・テラス・庭 | 南面バルコニー |
| 日当たり・採光 | 南向き(南東・南西含む)、2面採光以上 |
| 構造・工法・仕様 | 長期優良住宅(耐震性、省エネ性等 高い)、ハウスメーカー施工、オール電化 |
| 管理・セキュリティ | TVモニター付インターフォン |
| 駐車場・駐輪場 | 駐車場2台以上 |
| 建築年数 | 完成済み |
| 道路 | 南側道路(南東・南西含む)、前道6m以上 |
| 立地・環境 | 閑静な住宅地 |
| 周辺環境 | スーパー 徒歩10分以内、小学校 徒歩10分以内、バス停 徒歩10分以内、コンビニ 徒歩10分以内、公園 徒歩10分以内 |
| 資金面の優遇制度あり | 長期優良住宅(税制優遇あり) |
| その他 | 即入居可 |
物件詳細情報
| 前面道路 |
6m幅(アスファルト舗装) 南側約6m公道に接道 |
|---|---|
| 建物構造 | 木造 / 2階建 |
| 施工会社 | タマホーム |
| 駐車場 | 有り(3台、駐車場代無料) |
| 都市計画 | 市街化区域 |
| 地目 | 宅地 |
| 用途地域 | 第一種中高層住居専用地域 |
| 建ぺい率 | 50% |
| 容積率 | 150% |
| 土地権利 | 所有権 |
| 上水道 | 有 |
| 下水道 | 有 |
| ガス・オール電化 | オール電化 |
| 引渡 | 即時 |
お気に入り登録者数-人
お気に入りって何?画面上部画面下部のボタンからお気に入り物件をいつでも確認できます。また「会員登録」すると、値下げ情報をメールでお知らせします。
お問い合わせの際に、物件番号を
お伝えいただくとスムーズです。
周辺環境
交通機関
-
浜北コミュニティバス赤佐中瀬線『遠江病院』
約100m(徒歩2分)
-
遠州鉄道『遠州芝本』
約1,400m(徒歩18分)
ショッピング
-
セブンイレブン 浜北西中瀬店
約350m(徒歩5分)
-
マックスバリュ浜北中瀬店
約700m(徒歩9分)
-
ココカラファイン 浜北中瀬店
約800m(徒歩10分)
-
遠鉄ストア 浜北店
約1,400m(徒歩18分)
-
フードマーケット マム 浜北店
約2,400m(徒歩30分)
教育機関
-
中瀬幼稚園
約900m(徒歩12分)
-
中瀬小学校
約550m(徒歩7分)
-
浜松市立浜北北部中学校
約1,700m(徒歩22分)
医療機関
-
さとうクリニック(内科、小児科他)
約400m(徒歩5分)
-
たかだ歯科
約450m(徒歩6分)
公共施設
-
西中瀬一丁目公園
約280m(徒歩4分)
-
中瀬協働センター
約850m(徒歩11分)
-
浜北警察署 浜北北部交番
約1,500m(徒歩19分)
その他
-
浜松いわた信用金庫 於呂支店
約1,000m(徒歩13分)
-
浜北中瀬郵便局
約550m(徒歩7分)
-
丸亀製麺浜北
約800m(徒歩10分)
価格
| 価格 | 3,980万円~4,400万円 |
|---|
ローンシミュレーション
この物件を購入した場合の、
月々の支払い価格の一例です。
ボーナス併用プラン
- 毎月返済
-
円
- ボーナス月加算額
-
(1回)
円
ボーナスなしプラン
- 毎月返済
-
円
- ボーナス月加算額
-
(1回)
0円
- 借入額 万円
- 頭金 万円
- 変動金利(年利) %
- 返済期間 年
※ボーナスは年2回で計算しています。
※別途諸経費が必要となります。
※その他の資金計画のシミュレーションを行いたい場合は「資金計画シミュレーション」をご利用ください。
イベント情報
現地案内会(事前に必ずお問い合わせください)
日程/公開中
■ネットでの予約
物件見学のご予約について、お電話はもちろん、しずなび内の「見学予約」または、「資料請求」ボタンからネット予約も可能です。
ご予約いただけますと、お客様のご都合の良い時間に合わせてご案内が可能です。
毎日ご案内可能ですが、各物件にスタッフが常駐しておりませんのでご連絡頂いてから向かわせて頂いております。
事前にご予約頂ければ、各種資料もご準備いたします。
各ご家庭に沿ったご案内ができるように誠心誠意ご対応いたします。
建物はもちろん、その土地の災害リスク、将来人口予想、周辺環境もレポートを纏めてご案内できます。お気軽にお申し付けください。
■選べるコースもご用意しております。
①ショートコース(10~15分)
主に物件の雰囲気や間取りを見て頂ける軽めコース
②通常コース(30~60分)
物件の内覧+住宅ローン+資金計画、スケジュールや周辺環境等、住宅に購入に関することを様々な角度からご提案させて頂くコース。
③ロングコース(上記以上)
通常コース+他の物件もまとめてみたい方にオススメコース。
担当者情報

【ご見学できます!】浜松市浜名区西中瀬 4棟 4LDK 2025年5月完成済
取引有効期限 2025年11月07日
次回更新予定日 2025年11月07日
※本掲載情報と現況に差異がある場合、現況を優先します。掲載物件は売却済あるいは売出中止となる場合もあります。
※価格は物件の代金総額を表示しており、消費税が課税される場合は税込み価格です。 (1000円未満は切り上げ。)
※金利(初期値)は2023年9月1日現在のものです。当社提携銀行によるもので、お客様によって金利が変わる場合もございます。
担当者コメント
浜松市の新築一戸建てについては、私たちにお任せください!
不動産のプロである不動産スタッフと一緒に見学に行くことでお客様自身、物件の相場感覚や物件を見るポイントが実体験の中で身につきます。 現地まで私がご案内し、物件について詳しくご説明いたします。ぜひお気軽にご相談ください。