新築一戸建て
新築

静岡市駿河区馬渕7期 4LDK 新築一戸建て 

所在地

静岡県静岡市駿河区馬渕2-10-7

地図で確認
※地図上に表示される物件の位置は付近住所に所在することを表すものであり、実際の物件所在地とは異なる場合がございます。
交通
しずおかジャストライン「馬渕二丁目」/徒歩2分
JR東海道本線「静岡」/徒歩12分

販売戸数
2区画
総戸数
2区画
学区
中田小学校/大里中学校
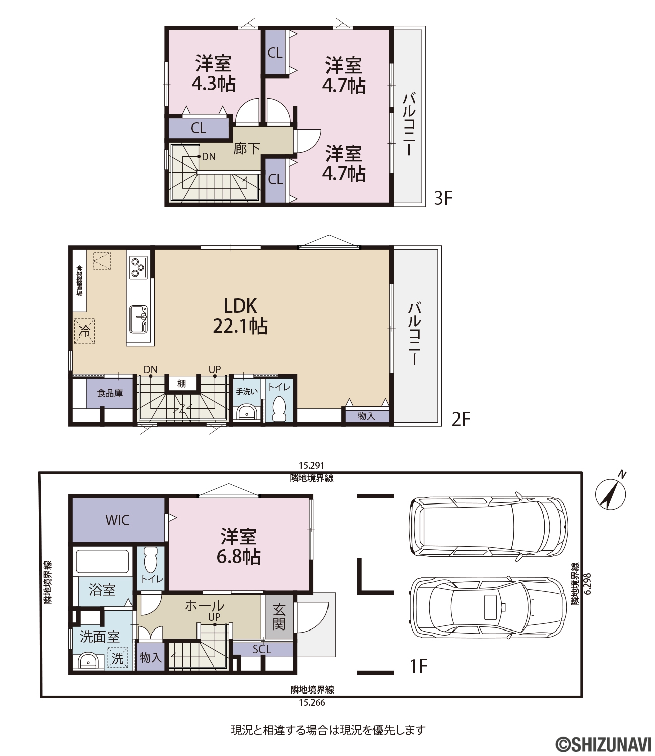
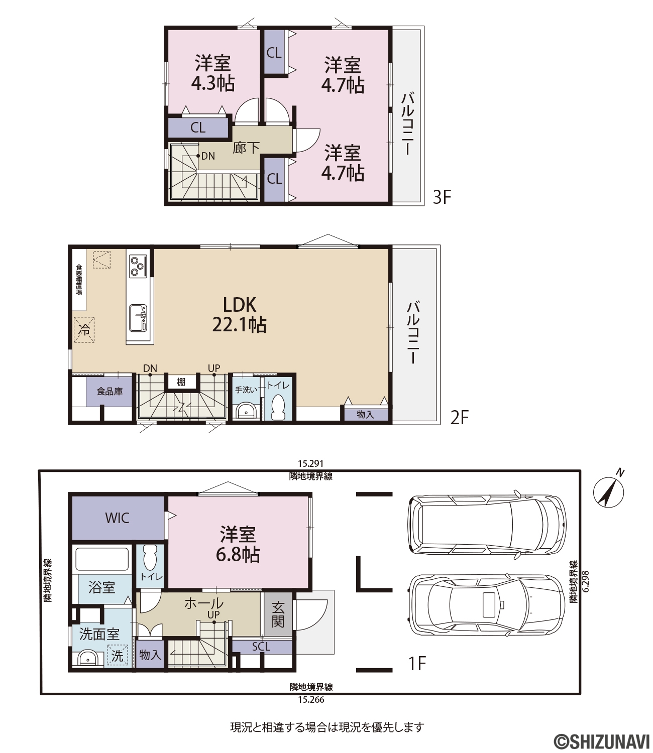
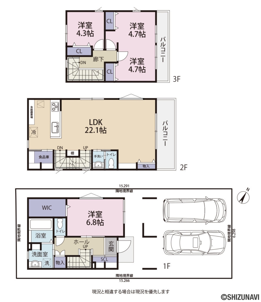
間取り
4LDK(1号地(1階:洋室6.8帖/2階:LDK22帖/3階:洋室4.7帖、4.7帖、4.3帖) 2号地(1階:洋室7帖/2階:LDK22.8帖/3階:洋室5.6帖、5.6帖、4.9帖))
完成年月
2026年4月(完成済み)
建物面積
110.54m2~111.15m2(33.43坪~33.62坪)
土地面積
96.23m2(29.1坪)
お気に入りに追加

お気に入り登録者数-

お気に入りって何?画面上部画面下部のボタンからお気に入り物件をいつでも確認できます。また「会員登録」すると、値下げ情報をメールでお知らせします。

お問い合わせの際に、物件番号を
お伝えいただくとスムーズです。

物件番号N-289583

区画詳細

1号地

価格 5,590万円
間取り 4LDK
建物面積 110.54m2(33.43坪)
土地面積 96.23m2(29.1坪)

2号地

価格 5,590万円
間取り 4LDK
建物面積 111.15m2(33.62坪)
土地面積 96.23m2(29.1坪)
内覧予約(無料)
駿河区馬渕 4LDK 駐車スペース2台

■2026年4月完成
■ライフライン
中部電力、上水道、下水道、都市ガス
■周辺情報
コンビニまで徒歩4分、スーパーまで徒歩8分
■学区
中田小学校、大里中学校
■おすすめポイント
・長期優良住宅
・JR東海道本線「静岡」まで900mの立地

お気に入りに追加

お気に入り登録者数-

お気に入りって何?画面上部画面下部のボタンからお気に入り物件をいつでも確認できます。また「会員登録」すると、値下げ情報をメールでお知らせします。

お問い合わせの際に、物件番号を
お伝えいただくとスムーズです。

物件番号N-289583

物件の特徴・設備

間取り・広さ LDK20畳以上
室内設備・仕様・収納 全居室収納、シューズインクローク、床下収納
キッチン システムキッチン、食器洗乾燥機
バス・トイレ 浴室乾燥機、浴室1坪以上、追い炊き機能
構造・工法・仕様 長期優良住宅(耐震性、省エネ性等 高い)、省エネ給湯器、太陽光発電システム、複層ガラス、24時間喚気システム
管理・セキュリティ TVモニター付インターフォン
駐車場・駐輪場 駐車場2台以上
立地・環境 整形地
周辺環境 小学校 徒歩10分以内、バス停 徒歩10分以内、コンビニ 徒歩10分以内、公園 徒歩10分以内

物件詳細情報

前面道路

3.2m幅

北東 公道 接面6.2m

建物構造 木造 / 3階建
施工会社 (株)AVANTIA(五朋建設)
建築確認番号 第2025確認建築静建住ま06162号
駐車場 有り(2台、駐車場代無料)
都市計画 市街化区域
地目 宅地
用途地域 近隣商業地域
建ぺい率 80%
容積率 200%
土地権利 所有権
上水道
下水道
ガス・オール電化 都市ガス
引渡 相談
お気に入りに追加

お気に入り登録者数-

お気に入りって何?画面上部画面下部のボタンからお気に入り物件をいつでも確認できます。また「会員登録」すると、値下げ情報をメールでお知らせします。

お問い合わせの際に、物件番号を
お伝えいただくとスムーズです。

物件番号N-289583

周辺環境

交通機関

  • しずてつバス「馬渕二丁目」

    約160m(徒歩2分)

  • JR東海道本線「静岡」

    約960m(徒歩12分)

ショッピング

  • セブンイレブン静岡馬渕一丁目店

    約280m(徒歩4分)

  • ザ・ビッグ静岡新川店

    約600m(徒歩8分)

  • 100えんハウスレモン中原店

    約700m(徒歩9分)

  • ウエルシア静岡駅アスティ店

    約850m(徒歩11分)

教育機関

  • 中田小学校

    約700m(徒歩9分)

  • 大里中学校

    約1,800m(徒歩23分)

公共施設

  • 静岡馬渕郵便局

    約280m(徒歩4分)

その他

  • 馬淵二丁目公園

    約140m(徒歩2分)

  • 清水銀行静岡南支店

    約550m(徒歩7分)

価格

価格 5,590万円

ローンシミュレーション

この物件を購入した場合の、
月々の支払い価格の一例です。

返済例 1

ボーナス併用プラン

毎月返済
ボーナス月加算額
(1回)
返済例 2

ボーナスなしプラン

毎月返済
ボーナス月加算額
(1回)
0
  • 借入額 万円
  • 頭金 万円
  • 変動金利(年利) %
  • 返済期間

※ボーナスは年2回で計算しています。

※別途諸経費が必要となります。

※その他の資金計画のシミュレーションを行いたい場合は「資金計画シミュレーション」をご利用ください。

イベント情報

現地案内会(事前に必ずお問い合わせください)
日程/公開中
■ネットでの予約

物件見学のご予約について、お電話はもちろん、しずなび内の「見学予約」または、「資料請求」ボタンからネット予約も可能です。
ご予約いただけますと、お客様のご都合の良い時間に合わせてご案内が可能です。

毎日ご案内可能ですが、各物件にスタッフが常駐しておりませんのでご連絡頂いてから向かわせて頂いております。
事前にご予約頂ければ、各種資料もご準備いたします。
各ご家庭に沿ったご案内ができるように誠心誠意ご対応いたします。

建物はもちろん、その土地の災害リスク、将来人口予想、周辺環境もレポートを纏めてご案内できます。お気軽にお申し付けください。

■選べるコースもご用意しております。

①ショートコース(10~15分)
主に物件の雰囲気や間取りを見て頂ける軽めコース

②通常コース(30~60分)
物件の内覧+住宅ローン+資金計画、スケジュールや周辺環境等、住宅に購入に関することを様々な角度からご提案させて頂くコース。

③ロングコース(上記以上)
通常コース+他の物件もまとめてみたい方にオススメコース。

新築一戸建て
新築

静岡市駿河区馬渕7期 4LDK 新築一戸建て 

所在地
静岡県静岡市駿河区馬渕2-10-7
価格
5,590万円
間取り
4LDK(1号地(1階:洋室6.8帖/2階:LDK22帖/3階:洋室4.7帖、4.7帖、4.3帖) 2号地(1階:洋室7帖/2階:LDK22.8帖/3階:洋室5.6帖、5.6帖、4.9帖))
物件番号 N-289583

取引有効期限 2026年05月16日
次回更新予定日 2026年05月16日

※本掲載情報と現況に差異がある場合、現況を優先します。掲載物件は売却済あるいは売出中止となる場合もあります。
※価格は物件の代金総額を表示しており、消費税が課税される場合は税込み価格です。 (1000円未満は切り上げ。)
※金利(初期値)は2026年4月1日現在のものです。当社提携銀行によるもので、お客様によって金利が変わる場合もございます。

お気に入りに追加

お気に入り登録者数-

お気に入りって何?画面上部画面下部のボタンからお気に入り物件をいつでも確認できます。また「会員登録」すると、値下げ情報をメールでお知らせします。

お問い合わせの際に、物件番号を
お伝えいただくとスムーズです。

物件番号N-289583

似ている物件

  1. メリット1

    会員優先・
    非公開物件

    の閲覧

  2. メリット2

    新着物件
    先行配信

  3. メリット3

    プライスダウン
    物件
    を先行配信

  4. メリット4

    自分だけの
    マイページ作成

  5. メリット5

    イベント・セミナー・
    お役立ち情報

    お届け