新築一戸建て
新築

【2026.6完成予定】静岡市清水区追分4丁目3期 4LDK 新築一戸建て 

価格
4,280万円~4,390万円
所在地

静岡県静岡市清水区追分4-2106-2

地図で確認
※地図上に表示される物件の位置は付近住所に所在することを表すものであり、実際の物件所在地とは異なる場合がございます。
交通
しずおかジャストライン「大坪二丁目」/徒歩6分
静岡鉄道静岡清水線「桜橋」/徒歩11分
販売戸数
2区画
総戸数
2区画
学区
清水入江小学校/清水第八中学校
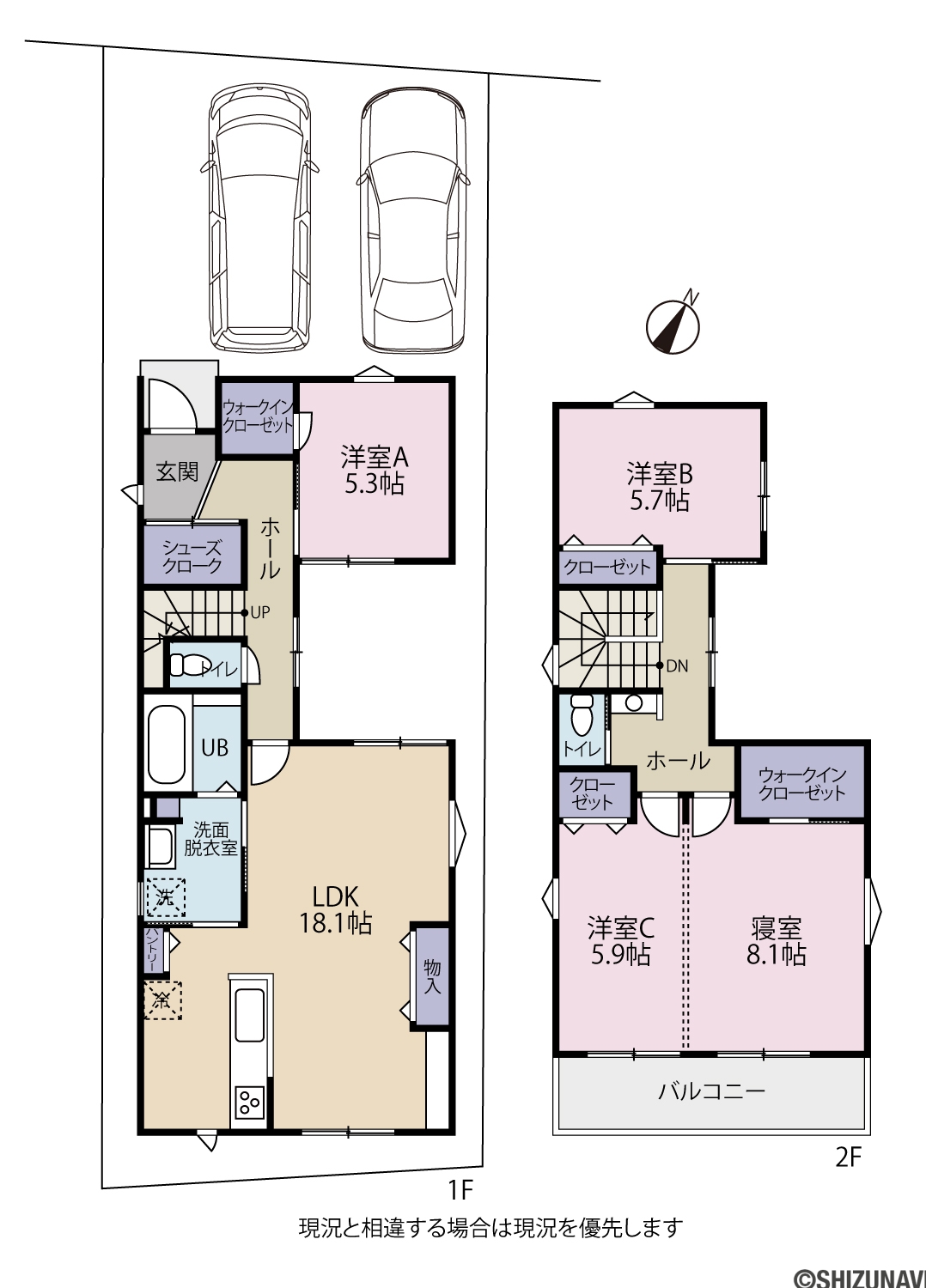
間取り
4LDK(1号地(1階:LDK18.1帖、洋室5.3帖/2階:洋室8.1帖、5.9帖、5.7帖) 2号地(1階:LDK21.8帖/2階:洋室7.5帖、5.8帖、4.5帖、4.5帖))
完成年月
2026年6月(完成予定)
建物面積
109.30m2~110.54m2(33.06坪~33.43坪)
土地面積
130.57m2~130.74m2(39.49坪~39.54坪)
お気に入りに追加

お気に入り登録者数-

お気に入りって何?画面上部画面下部のボタンからお気に入り物件をいつでも確認できます。また「会員登録」すると、値下げ情報をメールでお知らせします。

お問い合わせの際に、物件番号を
お伝えいただくとスムーズです。

物件番号N-312283

区画詳細

1号地

価格 4,390万円
間取り 4LDK
建物面積 110.54m2(33.43坪)
土地面積 130.74m2(39.54坪)

2号地

価格 4,280万円
間取り 4LDK
建物面積 109.30m2(33.06坪)
土地面積 130.57m2(39.49坪)
内覧予約(無料)
清水区追分4丁目 4LDK 駐車スペース2台

■2026年6月完成予定
■ライフライン
中部電力、上水道、下水道、都市ガス
■周辺情報
コンビニまで徒歩2分、スーパーまで徒歩8分
■学区
清水入江小学校、清水第八中学校
■おすすめポイント
・認定長期優良住宅
・最寄り駅まで850mの立地

お気に入りに追加

お気に入り登録者数-

お気に入りって何?画面上部画面下部のボタンからお気に入り物件をいつでも確認できます。また「会員登録」すると、値下げ情報をメールでお知らせします。

お問い合わせの際に、物件番号を
お伝えいただくとスムーズです。

物件番号N-312283

物件の特徴・設備

間取り・広さ LDK18畳以上
室内設備・仕様・収納 ウォークインクローゼット、シューズインクローク
キッチン システムキッチン
バス・トイレ 浴室乾燥機、浴室1坪以上、追い炊き機能
日当たり・採光 2面採光以上
構造・工法・仕様 天井高2.5m以上、デザイナーズ、省エネ給湯器、太陽光発電システム、複層ガラス、24時間喚気システム
管理・セキュリティ TVモニター付インターフォン
駐車場・駐輪場 駐車場2台以上
周辺環境 スーパー 徒歩10分以内、小学校 徒歩10分以内、バス停 徒歩10分以内、コンビニ 徒歩10分以内

物件詳細情報

前面道路

13.3m幅

1号地(北 公道 接面6.7m)
2号地(北 公道 接面6.2m)

建物構造 木造 / 2階建
施工会社 (株)AVANTIA(五朋建設)
建築確認番号 第2025確認建築静建住ま11050号他
駐車場 有り(2台、駐車場代無料)
都市計画 市街化区域
地目 宅地
用途地域 第一種住居地域
建ぺい率 60%
容積率 200%
土地権利 所有権
上水道
下水道
ガス・オール電化 都市ガス
引渡 相談
お気に入りに追加

お気に入り登録者数-

お気に入りって何?画面上部画面下部のボタンからお気に入り物件をいつでも確認できます。また「会員登録」すると、値下げ情報をメールでお知らせします。

お問い合わせの際に、物件番号を
お伝えいただくとスムーズです。

物件番号N-312283

周辺環境

交通機関

  • しずてつバス「大坪二丁目」

    約480m(徒歩6分)

  • 静岡清水線「桜橋」

    約850m(徒歩11分)

ショッピング

  • ファミリーマート清水追分店

    約120m(徒歩2分)

  • ローソン清水大坪二丁目店

    約450m(徒歩6分)

  • マックスバリュエクスプレス清水追分店

    約600m(徒歩8分)

  • クリエイトS・D清水北脇店

    約650m(徒歩9分)

  • DCM清水渋川店

    約700m(徒歩9分)

教育機関

  • 清水入江小学校

    約600m(徒歩8分)

  • 清水第八中学校

    約240m(徒歩3分)

公共施設

  • 清水大曲郵便局

    約650m(徒歩9分)

その他

  • JAしみず有度支店

    約350m(徒歩5分)

  • 清水銀行追分支店

    約550m(徒歩7分)

価格

価格 4,280万円~4,390万円

ローンシミュレーション

この物件を購入した場合の、
月々の支払い価格の一例です。

返済例 1

ボーナス併用プラン

毎月返済
ボーナス月加算額
(1回)
返済例 2

ボーナスなしプラン

毎月返済
ボーナス月加算額
(1回)
0
  • 借入額 万円
  • 頭金 万円
  • 変動金利(年利) %
  • 返済期間

※ボーナスは年2回で計算しています。

※別途諸経費が必要となります。

※その他の資金計画のシミュレーションを行いたい場合は「資金計画シミュレーション」をご利用ください。

イベント情報

現地案内会(事前に必ずお問い合わせください)
日程/公開中
■ネットでの予約

物件見学のご予約について、お電話はもちろん、しずなび内の「見学予約」または、「資料請求」ボタンからネット予約も可能です。
ご予約いただけますと、お客様のご都合の良い時間に合わせてご案内が可能です。

毎日ご案内可能ですが、各物件にスタッフが常駐しておりませんのでご連絡頂いてから向かわせて頂いております。
事前にご予約頂ければ、各種資料もご準備いたします。
各ご家庭に沿ったご案内ができるように誠心誠意ご対応いたします。

建物はもちろん、その土地の災害リスク、将来人口予想、周辺環境もレポートを纏めてご案内できます。お気軽にお申し付けください。

■選べるコースもご用意しております。

①ショートコース(10~15分)
主に物件の雰囲気や間取りを見て頂ける軽めコース

②通常コース(30~60分)
物件の内覧+住宅ローン+資金計画、スケジュールや周辺環境等、住宅に購入に関することを様々な角度からご提案させて頂くコース。

③ロングコース(上記以上)
通常コース+他の物件もまとめてみたい方にオススメコース。

新築一戸建て
新築

【2026.6完成予定】静岡市清水区追分4丁目3期 4LDK 新築一戸建て 

所在地
静岡県静岡市清水区追分4-2106-2
価格
4,280万円~4,390万円
間取り
4LDK(1号地(1階:LDK18.1帖、洋室5.3帖/2階:洋室8.1帖、5.9帖、5.7帖) 2号地(1階:LDK21.8帖/2階:洋室7.5帖、5.8帖、4.5帖、4.5帖))
物件番号 N-312283

取引有効期限 2026年05月30日
次回更新予定日 2026年05月30日

※本掲載情報と現況に差異がある場合、現況を優先します。掲載物件は売却済あるいは売出中止となる場合もあります。
※価格は物件の代金総額を表示しており、消費税が課税される場合は税込み価格です。 (1000円未満は切り上げ。)
※金利(初期値)は2026年4月1日現在のものです。当社提携銀行によるもので、お客様によって金利が変わる場合もございます。

お気に入りに追加

お気に入り登録者数-

お気に入りって何?画面上部画面下部のボタンからお気に入り物件をいつでも確認できます。また「会員登録」すると、値下げ情報をメールでお知らせします。

お問い合わせの際に、物件番号を
お伝えいただくとスムーズです。

物件番号N-312283
  1. メリット1

    会員優先・
    非公開物件

    の閲覧

  2. メリット2

    新着物件
    先行配信

  3. メリット3

    プライスダウン
    物件
    を先行配信

  4. メリット4

    自分だけの
    マイページ作成

  5. メリット5

    イベント・セミナー・
    お役立ち情報

    お届け