新築一戸建て
新築

【2026.8完成予定】駿河区八幡5丁目9期 4LDK 新築一戸建て 

所在地

静岡県静岡市駿河区八幡5-7-24

地図で確認
※地図上に表示される物件の位置は付近住所に所在することを表すものであり、実際の物件所在地とは異なる場合がございます。
交通
しずおかジャストライン「城南静岡高入口」/徒歩6分
販売戸数
1区画
総戸数
1区画
学区
森下小学校/高松中学校
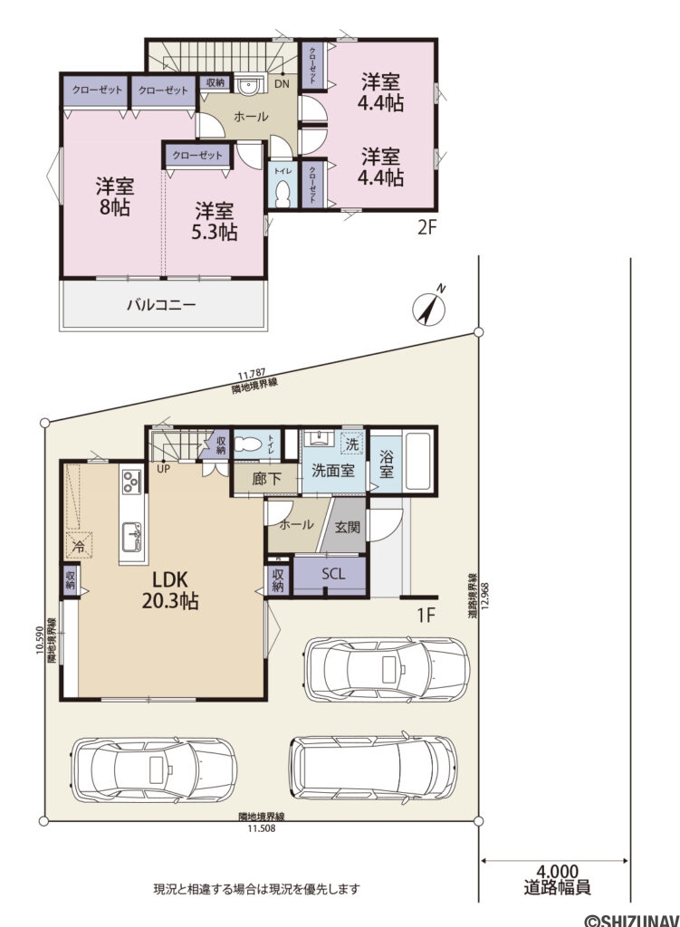
間取り
4LDK(1階:LDK 20.3帖 2階:洋室8帖、5.3帖、4.4帖、4.4帖)
完成年月
2026年8月(完成予定)
建物面積
106,382.00m2(32180.55坪)
土地面積
135.83m2(41.08坪)
お気に入りに追加

お気に入り登録者数-

お気に入りって何?画面上部画面下部のボタンからお気に入り物件をいつでも確認できます。また「会員登録」すると、値下げ情報をメールでお知らせします。

お問い合わせの際に、物件番号を
お伝えいただくとスムーズです。

物件番号N-326292

全体区画図

間取り

間取り 4LDK(1階:LDK 20.3帖 2階:洋室8帖、5.3帖、4.4帖、4.4帖)
建物面積 106,382.00m2(32180.55坪)
土地面積 135.83m2(41.08坪)
駿河区八幡5丁目 4LDK 駐車スペース3台

■2026年8月完成予定
■ライフライン
都市ガス、中部電力、上水道、下水道
■周辺情報
コンビニまで徒歩5分、スーパーまで徒歩5分
■学区
森下小学校、高松中学校

お気に入りに追加

お気に入り登録者数-

お気に入りって何?画面上部画面下部のボタンからお気に入り物件をいつでも確認できます。また「会員登録」すると、値下げ情報をメールでお知らせします。

お問い合わせの際に、物件番号を
お伝えいただくとスムーズです。

物件番号N-326292

物件の特徴・設備

間取り・広さ LDK20畳以上
室内設備・仕様・収納 全居室収納、シューズインクローク
キッチン システムキッチン
バス・トイレ 浴室乾燥機、浴室1坪以上、追い炊き機能
構造・工法・仕様 省エネ給湯器、24時間喚気システム
管理・セキュリティ TVモニター付インターフォン
駐車場・駐輪場 駐車場2台以上
立地・環境 整形地
周辺環境 スーパー 徒歩10分以内、バス停 徒歩10分以内、コンビニ 徒歩10分以内、公園 徒歩10分以内

物件詳細情報

前面道路

4.0m幅

北東 公道 接面12.9m

建物構造 木造 / 2階建
施工会社 (株)AVANTIA(五朋建設)
建築確認番号 第2025確認建築静建住ま00256号
駐車場 有り(3台、駐車場代無料)
都市計画 市街化区域
地目 宅地
用途地域 第二種中高層住居専用地域
建ぺい率 60%
容積率 160%
土地権利 所有権
上水道
下水道
ガス・オール電化 都市ガス
引渡 相談
お気に入りに追加

お気に入り登録者数-

お気に入りって何?画面上部画面下部のボタンからお気に入り物件をいつでも確認できます。また「会員登録」すると、値下げ情報をメールでお知らせします。

お問い合わせの際に、物件番号を
お伝えいただくとスムーズです。

物件番号N-326292

周辺環境

交通機関

  • しずてつバス「城南静岡高入口」

    約450m(徒歩6分)

  • JR東海道線「静岡」

    約1,500m(徒歩19分)

ショッピング

  • ファミリーマート静岡大坪南店

    約350m(徒歩5分)

  • バロー大坪店

    約360m(徒歩5分)

  • 杏林堂静岡大坪店

    約280m(徒歩4分)

  • セントラルスクエア静岡

    約670m(徒歩9分)

  • パルシェ

    約1,600m(徒歩20分)

教育機関

  • 森下小学校

    約1,100m(徒歩14分)

  • 高松中学校

    約1,700m(徒歩22分)

  • 南八幡幼稚園

    約340m(徒歩5分)

医療機関

  • 静岡済生会総合病院

    約2,000m(徒歩25分)

  • やはた内科・循環器内科

    約360m(徒歩5分)

  • 戸田クリニック(小児科)

    約420m(徒歩6分)

公共施設

  • 静岡市駿河区役所

    約600m(徒歩8分)

  • 静岡南警察署八幡交番

    約720m(徒歩9分)

  • 静岡市消防局

    約730m(徒歩10分)

その他

  • 大坪町公園

    約570m(徒歩8分)

価格

価格 5,780万円

ローンシミュレーション

この物件を購入した場合の、
月々の支払い価格の一例です。

返済例 1

ボーナス併用プラン

毎月返済
ボーナス月加算額
(1回)
返済例 2

ボーナスなしプラン

毎月返済
ボーナス月加算額
(1回)
0
  • 借入額 万円
  • 頭金 万円
  • 変動金利(年利) %
  • 返済期間

※ボーナスは年2回で計算しています。

※別途諸経費が必要となります。

※その他の資金計画のシミュレーションを行いたい場合は「資金計画シミュレーション」をご利用ください。

イベント情報

現地案内会(事前に必ずお問い合わせください)
日程/公開中
■ネットでの予約

物件見学のご予約について、お電話はもちろん、しずなび内の「見学予約」または、「資料請求」ボタンからネット予約も可能です。
ご予約いただけますと、お客様のご都合の良い時間に合わせてご案内が可能です。

毎日ご案内可能ですが、各物件にスタッフが常駐しておりませんのでご連絡頂いてから向かわせて頂いております。
事前にご予約頂ければ、各種資料もご準備いたします。
各ご家庭に沿ったご案内ができるように誠心誠意ご対応いたします。

建物はもちろん、その土地の災害リスク、将来人口予想、周辺環境もレポートを纏めてご案内できます。お気軽にお申し付けください。

■選べるコースもご用意しております。

①ショートコース(10~15分)
主に物件の雰囲気や間取りを見て頂ける軽めコース

②通常コース(30~60分)
物件の内覧+住宅ローン+資金計画、スケジュールや周辺環境等、住宅に購入に関することを様々な角度からご提案させて頂くコース。

③ロングコース(上記以上)
通常コース+他の物件もまとめてみたい方にオススメコース。

新築一戸建て
新築

【2026.8完成予定】駿河区八幡5丁目9期 4LDK 新築一戸建て 

所在地
静岡県静岡市駿河区八幡5-7-24
価格
5,780万円
間取り
4LDK(1階:LDK 20.3帖 2階:洋室8帖、5.3帖、4.4帖、4.4帖)
物件番号 N-326292

取引有効期限 2026年06月13日
次回更新予定日 2026年06月13日

※本掲載情報と現況に差異がある場合、現況を優先します。掲載物件は売却済あるいは売出中止となる場合もあります。
※価格は物件の代金総額を表示しており、消費税が課税される場合は税込み価格です。 (1000円未満は切り上げ。)
※金利(初期値)は2026年4月1日現在のものです。当社提携銀行によるもので、お客様によって金利が変わる場合もございます。

お気に入りに追加

お気に入り登録者数-

お気に入りって何?画面上部画面下部のボタンからお気に入り物件をいつでも確認できます。また「会員登録」すると、値下げ情報をメールでお知らせします。

お問い合わせの際に、物件番号を
お伝えいただくとスムーズです。

物件番号N-326292
  1. メリット1

    会員優先・
    非公開物件

    の閲覧

  2. メリット2

    新着物件
    先行配信

  3. メリット3

    プライスダウン
    物件
    を先行配信

  4. メリット4

    自分だけの
    マイページ作成

  5. メリット5

    イベント・セミナー・
    お役立ち情報

    お届け