NEW
新築一戸建て
新築

【2026.6完成予定】富士市天間第17 全3棟 新築戸建て

価格
2,580万円~2,680万円
所在地

静岡県富士市天間字高谷戸1081番1(1号棟)、1081番8(2号棟)、1081番9、1081番11の一部(3号棟)

地図で確認
※地図上に表示される物件の位置は付近住所に所在することを表すものであり、実際の物件所在地とは異なる場合がございます。
交通
-
販売戸数
3区画
総戸数
3区画
学区
富士市天間小学校/富士市鷹岡中学校
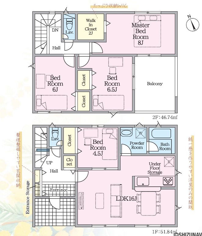
間取り
4LDK
完成年月
2026年6月(完成予定)
建物面積
97.20m2~100.44m2(29.4坪~30.38坪)
土地面積
188.01m2~255.99m2(56.87坪~77.43坪)
お気に入りに追加

お気に入り登録者数-

お気に入りって何?画面上部画面下部のボタンからお気に入り物件をいつでも確認できます。また「会員登録」すると、値下げ情報をメールでお知らせします。

お問い合わせの際に、物件番号を
お伝えいただくとスムーズです。

物件番号N-326641

全体区画図

富士市天間第17区画図

富士市天間第17区画図

区画詳細

1号棟

価格 2,580万円
間取り 4LDK
建物面積 97.20m2(29.4坪)
土地面積 192.64m2(58.27坪)

2号棟

価格 2,680万円
間取り 4LDK
建物面積 100.44m2(30.38坪)
土地面積 188.01m2(56.87坪)

3号棟

価格 2,680万円
間取り 4LDK
建物面積 98.82m2(29.89坪)
土地面積 255.99m2(77.43坪)
内覧予約(無料)
【2026.6完成予定】富士市天間第17 全3棟 新築戸建て

【2026.6完成予定】富士市天間第17 全3棟 新築戸建て
会話が弾む対面式キッチン
全居室収納付き
駐車場4台可

 

 

お気に入りに追加

お気に入り登録者数-

お気に入りって何?画面上部画面下部のボタンからお気に入り物件をいつでも確認できます。また「会員登録」すると、値下げ情報をメールでお知らせします。

お問い合わせの際に、物件番号を
お伝えいただくとスムーズです。

物件番号N-326641

物件の特徴・設備

間取り・広さ LDK15畳以上
キッチン システムキッチン
バス・トイレ シャワートイレ
管理・セキュリティ TVモニター付インターフォン
駐車場・駐輪場 駐車場2台以上

物件詳細情報

建物構造 木造 / 2階建
施工会社 株式会社アーネストワン
建築確認番号 第R08SHC103164号他
駐車場 有り(4台)
都市計画 市街化区域
地目 宅地
用途地域 第一種低層住居専用地域
建ぺい率 50%
容積率 80%
土地権利 所有権
上水道
下水道
ガス・オール電化 個別プロパン
引渡 期日指定
お気に入りに追加

お気に入り登録者数-

お気に入りって何?画面上部画面下部のボタンからお気に入り物件をいつでも確認できます。また「会員登録」すると、値下げ情報をメールでお知らせします。

お問い合わせの際に、物件番号を
お伝えいただくとスムーズです。

物件番号N-326641

周辺環境

交通機関

交通利便なし

ショッピング

  • マックスバリュ富士宮若宮店

    約1,265m(徒歩16分)

  • カインズ富士宮小泉店

    約1,296m(徒歩17分)

  • ファミリーマート富士天間高屋店

    約310m(徒歩4分)

教育機関

  • 富士市天間幼稚園

    約317m(徒歩4分)

  • 富士市天間小学校

    約888m(徒歩12分)

  • 富士市鷹岡中学校

    約1,598m(徒歩20分)

公共施設

  • 富士西公園

    約1,386m(徒歩18分)

その他

  • 富士天間簡易郵便局

    約576m(徒歩8分)

価格

価格 2,580万円~2,680万円

ローンシミュレーション

この物件を購入した場合の、
月々の支払い価格の一例です。

返済例 1

ボーナス併用プラン

毎月返済
ボーナス月加算額
(1回)
返済例 2

ボーナスなしプラン

毎月返済
ボーナス月加算額
(1回)
0
  • 借入額 万円
  • 頭金 万円
  • 変動金利(年利) %
  • 返済期間

※ボーナスは年2回で計算しています。

※別途諸経費が必要となります。

※その他の資金計画のシミュレーションを行いたい場合は「資金計画シミュレーション」をご利用ください。

イベント情報

現地案内会(事前に必ずお問い合わせください)
日程/公開中
■ネットでの予約

物件見学のご予約について、お電話はもちろん、しずなび内の「見学予約」または、「資料請求」ボタンからネット予約も可能です。
ご予約いただけますと、お客様のご都合の良い時間に合わせてご案内が可能です。

毎日ご案内可能ですが、各物件にスタッフが常駐しておりませんのでご連絡頂いてから向かわせて頂いております。
事前にご予約頂ければ、各種資料もご準備いたします。
各ご家庭に沿ったご案内ができるように誠心誠意ご対応いたします。

建物はもちろん、その土地の災害リスク、将来人口予想、周辺環境もレポートを纏めてご案内できます。お気軽にお申し付けください。

■選べるコースもご用意しております。

①ショートコース(10~15分)
主に物件の雰囲気や間取りを見て頂ける軽めコース

②通常コース(30~60分)
物件の内覧+住宅ローン+資金計画、スケジュールや周辺環境等、住宅に購入に関することを様々な角度からご提案させて頂くコース。

③ロングコース(上記以上)
通常コース+他の物件もまとめてみたい方にオススメコース。

新築一戸建て
新築

【2026.6完成予定】富士市天間第17 全3棟 新築戸建て

所在地
静岡県富士市天間字高谷戸1081番1(1号棟)、1081番8(2号棟)、1081番9、1081番11の一部(3号棟)
価格
2,580万円~2,680万円
間取り
4LDK
物件番号 N-326641

取引有効期限 2026年05月02日
次回更新予定日 2026年05月02日

※本掲載情報と現況に差異がある場合、現況を優先します。掲載物件は売却済あるいは売出中止となる場合もあります。
※価格は物件の代金総額を表示しており、消費税が課税される場合は税込み価格です。 (1000円未満は切り上げ。)
※金利(初期値)は2026年4月1日現在のものです。当社提携銀行によるもので、お客様によって金利が変わる場合もございます。

お気に入りに追加

お気に入り登録者数-

お気に入りって何?画面上部画面下部のボタンからお気に入り物件をいつでも確認できます。また「会員登録」すると、値下げ情報をメールでお知らせします。

お問い合わせの際に、物件番号を
お伝えいただくとスムーズです。

物件番号N-326641
  1. メリット1

    会員優先・
    非公開物件

    の閲覧

  2. メリット2

    新着物件
    先行配信

  3. メリット3

    プライスダウン
    物件
    を先行配信

  4. メリット4

    自分だけの
    マイページ作成

  5. メリット5

    イベント・セミナー・
    お役立ち情報

    お届け