中古住宅

静岡市清水区幸町 6SLDK

所在地

静岡県静岡市清水区幸町10-14

地図で確認
※地図上に表示される物件の位置は付近住所に所在することを表すものであり、実際の物件所在地とは異なる場合がございます。
交通
しずてつジャストライン「清水総合運動場」/徒歩4分
JR東海道本線「清水」/2800m
学区
清水小学校/清水第三中学校
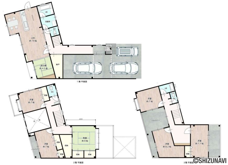
間取り
6SLDK(1階:LDK23.5帖、S4.5帖 2階:洋室7帖、7帖、和室8帖 3階:洋室8.2帖、7.7帖、7帖)
築年月
1996年11月(築28年)
建物面積
239.08m2(72.32坪)
土地面積
196.34m2(59.39坪)
お気に入りに追加

お気に入り登録者数-

お気に入りって何?画面上部画面下部のボタンからお気に入り物件をいつでも確認できます。また「会員登録」すると、値下げ情報をメールでお知らせします。

お問い合わせの際に、物件番号を
お伝えいただくとスムーズです。

物件番号H-284137

間取り

間取り 6SLDK(1階:LDK23.5帖、S4.5帖 2階:洋室7帖、7帖、和室8帖 3階:洋室8.2帖、7.7帖、7帖)
建物面積 239.08m2(72.32坪)
土地面積 196.34m2(59.39坪)
清水区幸町 屋根付きガレージあり駐車スペース3台

■おすすめポイント
・吹き抜けのあるリビング
・掘りごたつのある和室
■2025年5月リフォーム工事完了
内装:床(フローリング等) 壁・天井(クロス・塗装等)
外装:外壁 屋根
その他:ガレージ拡張、外構工事
■ライフライン
上水道、下水道、都市ガス
■学区
清水小学校、清水第三中学校

お気に入りに追加

お気に入り登録者数-

お気に入りって何?画面上部画面下部のボタンからお気に入り物件をいつでも確認できます。また「会員登録」すると、値下げ情報をメールでお知らせします。

お問い合わせの際に、物件番号を
お伝えいただくとスムーズです。

物件番号H-284137

物件の特徴・設備

間取り・広さ LDK20畳以上、和室
室内設備・仕様・収納 ウォークインクローゼット
キッチン システムキッチン
バス・トイレ 浴室1坪以上
駐車場・駐輪場 駐車場2台以上
周辺環境 小学校 徒歩10分以内、バス停 徒歩10分以内

物件詳細情報

前面道路

8.0m幅

東 公道 接面5.4m

建物構造 鉄骨造 / 3階建
駐車場 有り(3台、駐車場代無料)
都市計画 市街化区域
地目 宅地
用途地域 準工業地域
建ぺい率 60%
容積率 200%
土地権利 所有権
上水道
下水道
ガス・オール電化 都市ガス
現況 空家
引渡 相談
お気に入りに追加

お気に入り登録者数-

お気に入りって何?画面上部画面下部のボタンからお気に入り物件をいつでも確認できます。また「会員登録」すると、値下げ情報をメールでお知らせします。

お問い合わせの際に、物件番号を
お伝えいただくとスムーズです。

物件番号H-284137

周辺環境

交通機関

  • しずてつバス「清水総合運動場」

    約320m(徒歩4分)

  • JR東海道本線「清水」

    約2,800m(徒歩35分)

教育機関

  • 清水小学校

    約370m(徒歩5分)

  • 清水第三中学校

    約700m(徒歩9分)

医療機関

  • 宗美会清水駿府病院

    約1,020m(徒歩13分)

公共施設

  • 静岡市清水区役所

    約2,000m(徒歩25分)

その他

  • 清水月見町公園

    約1,550m(徒歩20分)

  • 清水幸町郵便局

    約280m(徒歩4分)

  • 日本平消防署

    約1,700m(徒歩22分)

価格

価格 2,498万円

ローンシミュレーション

この物件を購入した場合の、
月々の支払い価格の一例です。

返済例 1

ボーナス併用プラン

毎月返済
ボーナス月加算額
(1回)
返済例 2

ボーナスなしプラン

毎月返済
ボーナス月加算額
(1回)
0
  • 借入額 万円
  • 頭金 万円
  • 変動金利(年利) %
  • 返済期間

※ボーナスは年2回で計算しています。

※別途諸経費が必要となります。

※その他の資金計画のシミュレーションを行いたい場合は「資金計画シミュレーション」をご利用ください。

イベント情報

現地案内会(事前に必ずお問い合わせください)
日程/公開中
■ネットでの予約

物件見学のご予約について、お電話はもちろん、しずなび内の「見学予約」または、「資料請求」ボタンからネット予約も可能です。
ご予約いただけますと、お客様のご都合の良い時間に合わせてご案内が可能です。

毎日ご案内可能ですが、各物件にスタッフが常駐しておりませんのでご連絡頂いてから向かわせて頂いております。
事前にご予約頂ければ、各種資料もご準備いたします。
各ご家庭に沿ったご案内ができるように誠心誠意ご対応いたします。

建物はもちろん、その土地の災害リスク、将来人口予想、周辺環境もレポートを纏めてご案内できます。お気軽にお申し付けください。

■選べるコースもご用意しております。

①ショートコース(10~15分)
主に物件の雰囲気や間取りを見て頂ける軽めコース

②通常コース(30~60分)
物件の内覧+住宅ローン+資金計画、スケジュールや周辺環境等、住宅に購入に関することを様々な角度からご提案させて頂くコース。

③ロングコース(上記以上)
通常コース+他の物件もまとめてみたい方にオススメコース。

担当者情報

静岡県知事(8)第10306号

しずなび株式会社 静岡流通通り店

〒420-0803 静岡県静岡市葵区千代田6丁目30-22 (MAP

担当者
静岡流通通り店
取引態様
一般媒介

担当者コメント

静岡市の中古住宅については、私たちにお任せください!
不動産のプロである不動産スタッフと一緒に見学に行くことでお客様自身、物件の相場感覚や物件を見るポイントが実体験の中で身につきます。 現地まで私がご案内し、物件について詳しくご説明いたします。ぜひお気軽にご相談ください。

中古住宅

静岡市清水区幸町 6SLDK

所在地
静岡県静岡市清水区幸町10-14
価格
2,498万円
間取り
6SLDK(1階:LDK23.5帖、S4.5帖 2階:洋室7帖、7帖、和室8帖 3階:洋室8.2帖、7.7帖、7帖)
物件番号 H-284137

取引有効期限 2025年11月07日
次回更新予定日 2025年11月07日

※本掲載情報と現況に差異がある場合、現況を優先します。掲載物件は売却済あるいは売出中止となる場合もあります。
※価格は物件の代金総額を表示しており、消費税が課税される場合は税込み価格です。 (1000円未満は切り上げ。)
※金利(初期値)は2023年9月1日現在のものです。当社提携銀行によるもので、お客様によって金利が変わる場合もございます。

お気に入りに追加

お気に入り登録者数-

お気に入りって何?画面上部画面下部のボタンからお気に入り物件をいつでも確認できます。また「会員登録」すると、値下げ情報をメールでお知らせします。

お問い合わせの際に、物件番号を
お伝えいただくとスムーズです。

物件番号H-284137
  1. メリット1

    会員優先・
    非公開物件

    の閲覧

  2. メリット2

    新着物件
    先行配信

  3. メリット3

    プライスダウン
    物件
    を先行配信

  4. メリット4

    自分だけの
    マイページ作成

  5. メリット5

    イベント・セミナー・
    お役立ち情報

    お届け