マンション
中古マンション
360度パノラマVR付き

ベルメゾン富士川 6階 南西角部屋「3LDK」

この物件の360度パノラマVR

360度パノラマVR内覧なら"いつでもどこでも"実際の内覧に近い体験ができます。

価格
管理費(月額)
7,780円
修繕積立金(月額)
10,780円
所在地

静岡県富士市中之郷316-1

地図で確認
※地図上に表示される物件の位置は付近住所に所在することを表すものであり、実際の物件所在地とは異なる場合がございます。
交通
JR東海道本線「富士川駅」約400m(徒歩約5分)
学区
富士市立富士川第一小学校/富士市立富士川第一中学校
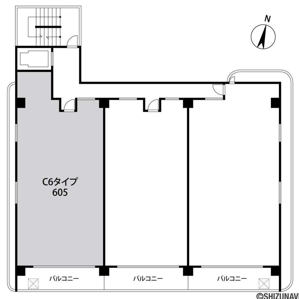
間取り
3LDK(リビングダイニングキッチン約19帖・洋室約9.5帖・洋室約4.6帖・和室6帖)
築年月
1992年2月(築34年)
専有面積
85.14m2(25.75坪)(壁芯)
バルコニー面積
9.55m2(2.88坪)
専用庭面積
-
お気に入りに追加

お気に入り登録者数-

お気に入りって何?画面上部画面下部のボタンからお気に入り物件をいつでも確認できます。また「会員登録」すると、値下げ情報をメールでお知らせします。

お問い合わせの際に、物件番号を
お伝えいただくとスムーズです。

物件番号M-325206

間取り

間取り 3LDK(リビングダイニングキッチン約19帖・洋室約9.5帖・洋室約4.6帖・和室6帖)
専有面積 85.14m2
バルコニー面積 9.55m2
日当たり通風良好な南西角部屋「3LDK」 JR富士川駅まで徒歩約400mの立地の分譲マンション

■ 富士市中之郷、JR富士川駅まで徒歩約400mの分譲マンション。
■ 日当たり通風、眺望も良好な6階の南東角部屋です。
■ 「3LDK」と用途に合わせた利用が可能な間取タイプ。
■ キッチンはIHコンロ、給湯は電気温水器のオール電化仕様。
■ 敷地内は平置き駐車場。駐輪場やバイク置場もあります。
■ 小さいお子様がいらっしゃる方に嬉しい敷地内公園スペースも完備。
■ 玄関外からは富士山の眺望も望めます。
■ 東名高速道路「富士川スマートIC」入口まで約2,500mの立地。
■ リフォーム工事のご提案の可能です。お気軽にお問合せ下さい。
■ 富士市立富士川第一小学校、富士川第一中学校が学校区です。
■ 現在空室の為、お好きなお時間にごゆっくりご内覧も可能。

お気に入りに追加

お気に入り登録者数-

お気に入りって何?画面上部画面下部のボタンからお気に入り物件をいつでも確認できます。また「会員登録」すると、値下げ情報をメールでお知らせします。

お問い合わせの際に、物件番号を
お伝えいただくとスムーズです。

物件番号M-325206

物件の特徴・設備

階・フロア 2階以上、角住戸
30戸以上
間取り・広さ LDK18畳以上
物件専有面積 専有面積25坪以上
室内設備・仕様・収納 和室有
キッチン システムキッチン、IHクッキングヒーター
バルコニー・テラス・庭 南面バルコニー
日当たり・採光 南向き(南東・南西含む)
構造・工法・仕様 RC造、オール電化
共用部 エレベーター、施設内に公園あり
管理・セキュリティ TVモニター付インターフォン
駐車場・駐輪場 平面式駐車場、バイク置場、駐輪場
周辺環境 駅 徒歩10分以内、バス停 徒歩10分以内、コンビニ 徒歩10分以内、公園 徒歩10分以内
その他 360度パノラマVR内覧
制限事項 景観法
備考 ■ 月額合計「24,560円/月額」

物件詳細情報

マンション名 ベルメゾン富士川
総戸数 65戸
所在階/階数 6階/10階建
構造 SRC(鉄骨鉄筋コンクリート)
施工会社 株式会社鈴木工務店
管理形態 全部委託
駐車場 有り(1台、5,000円)
ペット 不可
用途地域 第一種住居地域
土地権利 所有権
現況 空家
引渡 相談
お気に入りに追加

お気に入り登録者数-

お気に入りって何?画面上部画面下部のボタンからお気に入り物件をいつでも確認できます。また「会員登録」すると、値下げ情報をメールでお知らせします。

お問い合わせの際に、物件番号を
お伝えいただくとスムーズです。

物件番号M-325206

周辺環境

交通機関

  • JR東海道本線「富士川駅」

    約400m(徒歩5分)

ショッピング

  • セブンイレブン 富士市富士川駅前店

    約550m(徒歩7分)

  • クリエイトS・D富士中之郷店

    約750m(徒歩10分)

  • ウエルシア富士岩淵店

    約1,100m(徒歩14分)

  • エブリィビッグデー 西富士店

    約3,000m(徒歩38分)

  • イオンタウン蒲原

    約3,200m(徒歩40分)

教育機関

  • 富士市立富士川第一小学校

    約1,200m(徒歩15分)

  • 富士市富士川第一中学校

    約1,100m(徒歩14分)

  • 富士市富士川第一幼稚園

    約1,300m(徒歩17分)

医療機関

  • 秋庭歯科医院

    約700m(徒歩9分)

  • 宮沢内科医院

    約850m(徒歩11分)

  • 共立蒲原総合病院

    約1,500m(徒歩19分)

公共施設

  • 富士市富士川まちづくりセンター

    約1,200m(徒歩15分)

  • 富士川緑地公園 スポーツ広場

    約2,400m(徒歩30分)

  • 富士川体育館

    約4,200m(徒歩53分)

その他

  • 東町公園

    約250m(徒歩4分)

  • 富士川郵便局

    約800m(徒歩10分)

  • 静岡銀行 富士川支店

    約800m(徒歩10分)

価格

価格 720万円
管理費(月額) 7,780円
修繕積立金(月額) 10,780円
駐車場 有り(1台、5,000円)
区費 1,000円/月

ローンシミュレーション

この物件を購入した場合の、
月々の支払い価格の一例です。

返済例 1

ボーナス併用プラン

毎月返済
ボーナス月加算額
(1回)
返済例 2

ボーナスなしプラン

毎月返済
ボーナス月加算額
(1回)
0
  • 借入額 万円
  • 頭金 万円
  • 変動金利(年利) %
  • 返済期間

※ボーナスは年2回で計算しています。

※別途諸経費が必要となります。

※その他の資金計画のシミュレーションを行いたい場合は「資金計画シミュレーション」をご利用ください。

マンション
中古マンション

ベルメゾン富士川 6階 南西角部屋「3LDK」

所在地
静岡県富士市中之郷316-1
価格
720万円
間取り
3LDK(リビングダイニングキッチン約19帖・洋室約9.5帖・洋室約4.6帖・和室6帖)
物件番号 M-325206

取引有効期限 2026年05月30日
次回更新予定日 2026年05月30日

※本掲載情報と現況に差異がある場合、現況を優先します。掲載物件は売却済あるいは売出中止となる場合もあります。
※価格は物件の代金総額を表示しており、消費税が課税される場合は税込み価格です。 (1000円未満は切り上げ。)
※金利(初期値)は2026年4月1日現在のものです。当社提携銀行によるもので、お客様によって金利が変わる場合もございます。

お気に入りに追加

お気に入り登録者数-

お気に入りって何?画面上部画面下部のボタンからお気に入り物件をいつでも確認できます。また「会員登録」すると、値下げ情報をメールでお知らせします。

お問い合わせの際に、物件番号を
お伝えいただくとスムーズです。

物件番号M-325206
  1. メリット1

    会員優先・
    非公開物件

    の閲覧

  2. メリット2

    新着物件
    先行配信

  3. メリット3

    プライスダウン
    物件
    を先行配信

  4. メリット4

    自分だけの
    マイページ作成

  5. メリット5

    イベント・セミナー・
    お役立ち情報

    お届け