新築一戸建て
新築

【2026年4月完成予定】牧之原市静波 2棟

価格
2,180万円・2,280万円
所在地

静岡県牧之原市静波398-5

地図で確認
※地図上に表示される物件の位置は付近住所に所在することを表すものであり、実際の物件所在地とは異なる場合がございます。
交通
しずてつジャストライン/静波一丁目まで230m
販売戸数
2区画
総戸数
2区画
学区
川崎小学校/榛原中学校
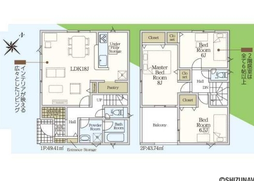
間取り
3LDK・4LDK
完成年月
2026年4月(完成予定)
建物面積
93.15m2・100.43m2(28.17坪・30.38坪)
土地面積
201.73m2・224.90m2(61.02坪・68.03坪)
お気に入りに追加

お気に入り登録者数-

お気に入りって何?画面上部画面下部のボタンからお気に入り物件をいつでも確認できます。また「会員登録」すると、値下げ情報をメールでお知らせします。

お問い合わせの際に、物件番号を
お伝えいただくとスムーズです。

物件番号N-314369

全体区画図

静波第11 区画図

区画図

区画詳細

1号棟 

価格 2,280万円
間取り 4LDK
建物面積 93.15m2(28.17坪)
土地面積 224.90m2(68.03坪)

2号棟

価格 2,180万円
間取り 3LDK
建物面積 100.43m2(30.38坪)
土地面積 201.73m2(61.02坪)
内覧予約(無料)
外壁サイディング 全室2面採光です

・2026年4月完成予定
・リビングは広々としております(1号棟:15帖 2号棟:18帖)
・使い勝手の良い動線です
・1号棟は趣味の部屋としても使えるテレワークルーム付です
・人感センサー付照明もあり、防犯面も安心です

お気に入りに追加

お気に入り登録者数-

お気に入りって何?画面上部画面下部のボタンからお気に入り物件をいつでも確認できます。また「会員登録」すると、値下げ情報をメールでお知らせします。

お問い合わせの際に、物件番号を
お伝えいただくとスムーズです。

物件番号N-314369

物件の特徴・設備

間取り・広さ LDK15畳以上、LDK18畳以上、和室
土地 土地60坪以上
室内設備・仕様・収納 ウォークインクローゼット、床下収納
キッチン システムキッチン、対面式キッチン
バス・トイレ 浴室乾燥機、浴室1坪以上、浴室に窓付き、追い炊き機能
構造・工法・仕様 複層ガラス
管理・セキュリティ TVモニター付インターフォン
駐車場・駐輪場 駐車場2台以上
立地・環境 整形地、閑静な住宅地
その他制限事項

【法令】宅地造成工事規制区域【その他制限事項】法第22条区域 建物面積に別途ルーフバルコニー約7.29平米有 土地面積に路地状部分約41平米含む【法令】宅地造成工事規制区域【その他制限事項】法第22条区域 建物面積に別途ルーフバルコニー約7.29平米有

物件詳細情報

前面道路

m幅

1号棟:南東4.7m 公道 接面10.3m
2号棟:南東4.7m 公道 接面4.5m

建物構造 木造 / 2階建
施工会社 アーネストワン
建築確認番号 第R07SHC124263号他
駐車場 有り(駐車場代無料)
都市計画 非線引き区域
地目 宅地
用途地域 第二種中高層住居専用地域
建ぺい率 60%
容積率 150%
土地権利 所有権
ガス・オール電化 プロパンガス
引渡 相談
お気に入りに追加

お気に入り登録者数-

お気に入りって何?画面上部画面下部のボタンからお気に入り物件をいつでも確認できます。また「会員登録」すると、値下げ情報をメールでお知らせします。

お問い合わせの際に、物件番号を
お伝えいただくとスムーズです。

物件番号N-314369

周辺環境

交通機関

  • しずてつジャストライン/静波一丁目

    約230m(徒歩3分)

ショッピング

  • ファミリーマート牧之原静波一丁目店

    約259m(徒歩4分)

  • バロー静波店

    約1,200m(徒歩15分)

  • ヤマザキYショップ静波スズヤ店

    約423m(徒歩6分)

  • ベイシアフードセンター吉田店

    約2,900m(徒歩37分)

  • ウエルシア牧之原榛原店

    約472m(徒歩6分)

教育機関

  • 川崎小学校

    約829m(徒歩11分)

  • 榛原中学校

    約1,700m(徒歩22分)

医療機関

  • 石井内科皮膚科医院

    約457m(徒歩6分)

  • 榛原総合病院

    約1,900m(徒歩24分)

公共施設

  • 牧之原市役所

    約469m(徒歩6分)

  • 榛原公園

    約887m(徒歩12分)

その他

  • 榛原郵便局

    約260m(徒歩4分)

  • 静岡銀行榛原支店

    約357m(徒歩5分)

  • スルガ銀行相良支店

    約395m(徒歩5分)

価格

価格 2,180万円・2,280万円

ローンシミュレーション

この物件を購入した場合の、
月々の支払い価格の一例です。

返済例 1

ボーナス併用プラン

毎月返済
ボーナス月加算額
(1回)
返済例 2

ボーナスなしプラン

毎月返済
ボーナス月加算額
(1回)
0
  • 借入額 万円
  • 頭金 万円
  • 変動金利(年利) %
  • 返済期間

※ボーナスは年2回で計算しています。

※別途諸経費が必要となります。

※その他の資金計画のシミュレーションを行いたい場合は「資金計画シミュレーション」をご利用ください。

イベント情報

現地案内会(事前に必ずお問い合わせください)
日程/公開中
■ネットでの予約

物件見学のご予約について、お電話はもちろん、しずなび内の「見学予約」または、「資料請求」ボタンからネット予約も可能です。
ご予約いただけますと、お客様のご都合の良い時間に合わせてご案内が可能です。

毎日ご案内可能ですが、各物件にスタッフが常駐しておりませんのでご連絡頂いてから向かわせて頂いております。
事前にご予約頂ければ、各種資料もご準備いたします。
各ご家庭に沿ったご案内ができるように誠心誠意ご対応いたします。

建物はもちろん、その土地の災害リスク、将来人口予想、周辺環境もレポートを纏めてご案内できます。お気軽にお申し付けください。

■選べるコースもご用意しております。

①ショートコース(10~15分)
主に物件の雰囲気や間取りを見て頂ける軽めコース

②通常コース(30~60分)
物件の内覧+住宅ローン+資金計画、スケジュールや周辺環境等、住宅に購入に関することを様々な角度からご提案させて頂くコース。

③ロングコース(上記以上)
通常コース+他の物件もまとめてみたい方にオススメコース。

新築一戸建て
新築

【2026年4月完成予定】牧之原市静波 2棟

所在地
静岡県牧之原市静波398-5
価格
2,180万円・2,280万円
間取り
3LDK・4LDK
物件番号 N-314369

取引有効期限 2026年05月30日
次回更新予定日 2026年05月30日

※本掲載情報と現況に差異がある場合、現況を優先します。掲載物件は売却済あるいは売出中止となる場合もあります。
※価格は物件の代金総額を表示しており、消費税が課税される場合は税込み価格です。 (1000円未満は切り上げ。)
※金利(初期値)は2026年4月1日現在のものです。当社提携銀行によるもので、お客様によって金利が変わる場合もございます。

お気に入りに追加

お気に入り登録者数-

お気に入りって何?画面上部画面下部のボタンからお気に入り物件をいつでも確認できます。また「会員登録」すると、値下げ情報をメールでお知らせします。

お問い合わせの際に、物件番号を
お伝えいただくとスムーズです。

物件番号N-314369
  1. メリット1

    会員優先・
    非公開物件

    の閲覧

  2. メリット2

    新着物件
    先行配信

  3. メリット3

    プライスダウン
    物件
    を先行配信

  4. メリット4

    自分だけの
    マイページ作成

  5. メリット5

    イベント・セミナー・
    お役立ち情報

    お届け