新築一戸建て
新築

2026年5月完成予定 藤枝市上当間 第2

所在地

静岡県藤枝市上当間8

地図で確認
※地図上に表示される物件の位置は付近住所に所在することを表すものであり、実際の物件所在地とは異なる場合がございます。
交通
藤枝市自主運行バス/鬼島公園まで215m
販売戸数
1区画
総戸数
1区画
学区
広幡小学校/広幡中学校
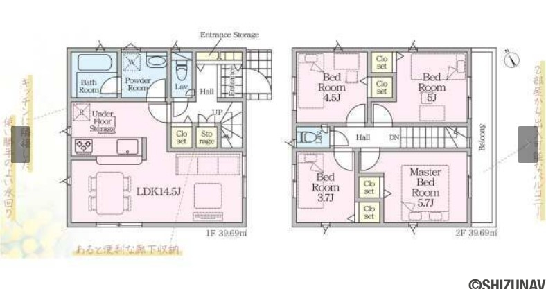
間取り
4LDK
完成年月
2026年5月(完成予定)
建物面積
79.38m2(24.01坪)
土地面積
99.44m2(30.08坪)
お気に入りに追加

お気に入り登録者数-

お気に入りって何?画面上部画面下部のボタンからお気に入り物件をいつでも確認できます。また「会員登録」すると、値下げ情報をメールでお知らせします。

お問い合わせの際に、物件番号を
お伝えいただくとスムーズです。

物件番号N-327775

全体区画図

アーネストワン 上当間 区画図

上当間 区画図

間取り

間取り 4LDK
建物面積 79.38m2(24.01坪)
土地面積 99.44m2(30.08坪)
外壁サイディング 全室2面採光 整形地

・土地面積:99.44㎡(30.08坪)建物面積:79.38㎡(24.01坪)
・キッチンにはあると便利な床下収納がございます
・水回り周辺は家事動線がしっかりと考えられております
・2階バルコニーは2部屋から出入りが可能です
・浴室暖房や浴室乾燥などがあり寒い冬や雨の日でも安心してお過ごしいただけます

お気に入りに追加

お気に入り登録者数-

お気に入りって何?画面上部画面下部のボタンからお気に入り物件をいつでも確認できます。また「会員登録」すると、値下げ情報をメールでお知らせします。

お問い合わせの際に、物件番号を
お伝えいただくとスムーズです。

物件番号N-327775

物件の特徴・設備

間取り・広さ LDK12畳以上
室内設備・仕様・収納 床下収納
キッチン システムキッチン、対面式キッチン
バス・トイレ 浴室乾燥機、浴室1坪以上、浴室に窓付き、追い炊き機能
構造・工法・仕様 複層ガラス
管理・セキュリティ TVモニター付インターフォン
駐車場・駐輪場 駐車場2台以上
立地・環境 整形地、閑静な住宅地
制限事項 宅地造成工事規制区域、高度地区

物件詳細情報

前面道路

m幅

東4.6m公道 接面8.0m

建物構造 木造 / 2階建
施工会社 アーネストワン
建築確認番号 第R08SHC100393号
駐車場 有り(2台、駐車場代無料)
都市計画 市街化区域
地目
用途地域 第二種中高層住居専用地域
建ぺい率 60%
容積率 150%
土地権利 所有権
ガス・オール電化 都市ガス
引渡 相談
お気に入りに追加

お気に入り登録者数-

お気に入りって何?画面上部画面下部のボタンからお気に入り物件をいつでも確認できます。また「会員登録」すると、値下げ情報をメールでお知らせします。

お問い合わせの際に、物件番号を
お伝えいただくとスムーズです。

物件番号N-327775

周辺環境

交通機関

  • 藤枝市自主運行バス/鬼島公園

    約215m(徒歩3分)

  • 東海道本線/西焼津駅 北口

    約3,200m(徒歩40分)

  • 東海道本線/焼津駅 北口

    約4,200m(徒歩53分)

ショッピング

  • ミニストップ藤枝上当間店

    約786m(徒歩10分)

  • スギドラッグ藤枝水守店

    約728m(徒歩10分)

  • しずてつストア藤枝水守店

    約859m(徒歩11分)

  • 富士屋五十海店

    約1,800m(徒歩23分)

  • V・ドラッグ藤枝水守店

    約1,200m(徒歩15分)

教育機関

  • 広幡小学校

    約1,200m(徒歩15分)

  • 広幡中学校

    約928m(徒歩12分)

医療機関

  • 川口内科

    約758m(徒歩10分)

  • ふくろう歯科

    約675m(徒歩9分)

  • かわさきクリニック

    約1,800m(徒歩23分)

公共施設

  • 第一公園

    約1,100m(徒歩14分)

その他

  • 広幡郵便局

    約563m(徒歩8分)

  • しずおか焼津信用金庫藤枝水守支店

    約916m(徒歩12分)

  • JA大井川立花

    約936m(徒歩12分)

価格

価格 2,080万円

ローンシミュレーション

この物件を購入した場合の、
月々の支払い価格の一例です。

返済例 1

ボーナス併用プラン

毎月返済
ボーナス月加算額
(1回)
返済例 2

ボーナスなしプラン

毎月返済
ボーナス月加算額
(1回)
0
  • 借入額 万円
  • 頭金 万円
  • 変動金利(年利) %
  • 返済期間

※ボーナスは年2回で計算しています。

※別途諸経費が必要となります。

※その他の資金計画のシミュレーションを行いたい場合は「資金計画シミュレーション」をご利用ください。

イベント情報

現地案内会(事前に必ずお問い合わせください)
日程/公開中
■ネットでの予約

物件見学のご予約について、お電話はもちろん、しずなび内の「見学予約」または、「資料請求」ボタンからネット予約も可能です。
ご予約いただけますと、お客様のご都合の良い時間に合わせてご案内が可能です。

毎日ご案内可能ですが、各物件にスタッフが常駐しておりませんのでご連絡頂いてから向かわせて頂いております。
事前にご予約頂ければ、各種資料もご準備いたします。
各ご家庭に沿ったご案内ができるように誠心誠意ご対応いたします。

建物はもちろん、その土地の災害リスク、将来人口予想、周辺環境もレポートを纏めてご案内できます。お気軽にお申し付けください。

■選べるコースもご用意しております。

①ショートコース(10~15分)
主に物件の雰囲気や間取りを見て頂ける軽めコース

②通常コース(30~60分)
物件の内覧+住宅ローン+資金計画、スケジュールや周辺環境等、住宅に購入に関することを様々な角度からご提案させて頂くコース。

③ロングコース(上記以上)
通常コース+他の物件もまとめてみたい方にオススメコース。

新築一戸建て
新築

2026年5月完成予定 藤枝市上当間 第2

所在地
静岡県藤枝市上当間8
価格
2,080万円
間取り
4LDK
物件番号 N-327775

取引有効期限 2026年05月30日
次回更新予定日 2026年05月30日

※本掲載情報と現況に差異がある場合、現況を優先します。掲載物件は売却済あるいは売出中止となる場合もあります。
※価格は物件の代金総額を表示しており、消費税が課税される場合は税込み価格です。 (1000円未満は切り上げ。)
※金利(初期値)は2026年4月1日現在のものです。当社提携銀行によるもので、お客様によって金利が変わる場合もございます。

お気に入りに追加

お気に入り登録者数-

お気に入りって何?画面上部画面下部のボタンからお気に入り物件をいつでも確認できます。また「会員登録」すると、値下げ情報をメールでお知らせします。

お問い合わせの際に、物件番号を
お伝えいただくとスムーズです。

物件番号N-327775
  1. メリット1

    会員優先・
    非公開物件

    の閲覧

  2. メリット2

    新着物件
    先行配信

  3. メリット3

    プライスダウン
    物件
    を先行配信

  4. メリット4

    自分だけの
    マイページ作成

  5. メリット5

    イベント・セミナー・
    お役立ち情報

    お届け