新築一戸建て
新築

【2026年7月完成予定】浜松市中央区三和町 5棟 3SLDK/4LDK

価格
2,990万円~3,290万円
所在地

静岡県浜松市中央区三和町273-1、273-4

地図で確認
※地図上に表示される物件の位置は付近住所に所在することを表すものであり、実際の物件所在地とは異なる場合がございます。
交通
遠鉄バス/三和町停より徒歩約2分 約140m
東海道本線/浜松駅より車で約9分 約3.5㎞
販売戸数
5区画
総戸数
5区画
学区
飯田小学校/東部中学校
間取り
3SLDK4LDK
完成年月
2026年7月(完成予定)
建物面積
95.57m2~99.63m2(28.9坪~30.13坪)
土地面積
145.49m2~190.49m2(44.01坪~57.62坪)
お気に入りに追加

お気に入り登録者数-

お気に入りって何?画面上部画面下部のボタンからお気に入り物件をいつでも確認できます。また「会員登録」すると、値下げ情報をメールでお知らせします。

お問い合わせの際に、物件番号を
お伝えいただくとスムーズです。

物件番号N-330271

全体区画図

区画詳細

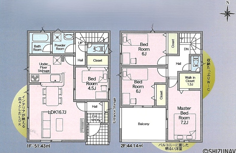
1号棟

価格 3,190万円
間取り 3SLDK
建物面積 95.58m2(28.91坪)
土地面積 147.67m2(44.67坪)

2号棟

価格 3,290万円
間取り 4LDK
建物面積 95.57m2(28.9坪)
土地面積 145.49m2(44.01坪)

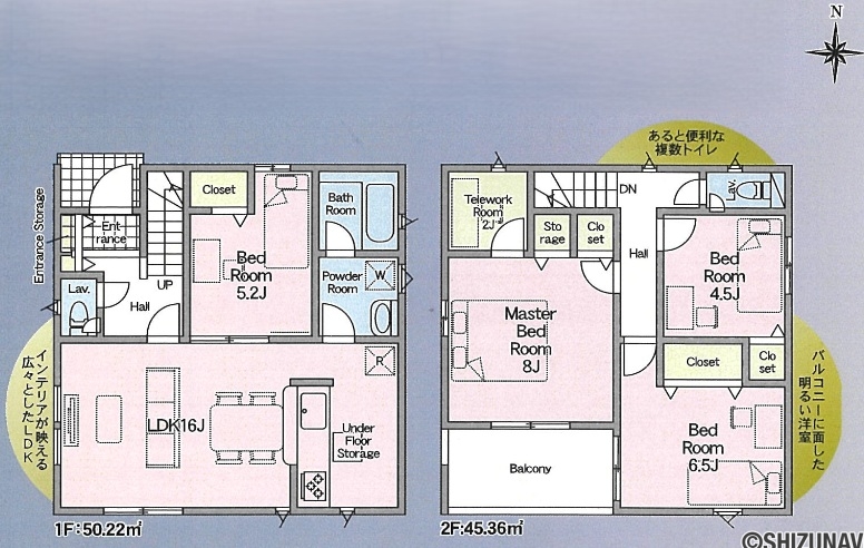
3号棟

価格 3,190万円
間取り 4LDK
建物面積 98.82m2(29.89坪)
土地面積 150.12m2(45.41坪)

4号棟

価格 2,990万円
間取り 4LDK
建物面積 95.58m2(28.91坪)
土地面積 149.42m2(45.19坪)

5号棟

価格 3,090万円
間取り 4LDK
建物面積 99.63m2(30.13坪)
土地面積 190.49m2(57.62坪)
内覧予約(無料)
お気に入りに追加

お気に入り登録者数-

お気に入りって何?画面上部画面下部のボタンからお気に入り物件をいつでも確認できます。また「会員登録」すると、値下げ情報をメールでお知らせします。

お問い合わせの際に、物件番号を
お伝えいただくとスムーズです。

物件番号N-330271

物件の特徴・設備

間取り・広さ LDK12畳以上、LDK15畳以上
室内設備・仕様・収納 全居室収納、床下収納
キッチン システムキッチン、対面式キッチン
バス・トイレ 浴室乾燥機、浴室1坪以上、浴室に窓付き、追い炊き機能、シャワートイレ
バルコニー・テラス・庭 南面バルコニー
日当たり・採光 南向き(南東・南西含む)
構造・工法・仕様 耐震構造、ハウスメーカー施工
管理・セキュリティ TVモニター付インターフォン
駐車場・駐輪場 駐車場2台以上
道路 前道6m以上
周辺環境 スーパー 徒歩10分以内、小学校 徒歩10分以内、バス停 徒歩10分以内、コンビニ 徒歩10分以内、公園 徒歩10分以内
証明書類あり 住宅性能評価書あり、新築時・増改築時の設計図あり
資金面の優遇制度あり フラット35・S適合(金利引き下げあり)
その他 住宅性能評価取得済み
制限事項 文化財保護法、宅地造成工事規制区域

物件詳細情報

前面道路

6・5.8m幅(アスファルト舗装)

1号棟 西:5.8m 2号棟 北:6m 西:5.8m 3号棟 北:6m 4号棟 北:6m 5号棟 北:6m

建物構造 木造 / 2階建
施工会社 アーネストワン
建築確認番号 第R08SHC101440号他
駐車場 有り(2~3台、駐車場代無料)
都市計画 市街化区域
地目 宅地
用途地域 第一種住居地域
建ぺい率 60%、70%
容積率 200%
土地権利 所有権
上水道
下水道
ガス・オール電化 都市ガス
引渡 相談
お気に入りに追加

お気に入り登録者数-

お気に入りって何?画面上部画面下部のボタンからお気に入り物件をいつでも確認できます。また「会員登録」すると、値下げ情報をメールでお知らせします。

お問い合わせの際に、物件番号を
お伝えいただくとスムーズです。

物件番号N-330271

周辺環境

交通機関

  • 遠鉄バス/三和町

    約140m(徒歩2分)

  • 東海道本線/豊田町

    3.5km

ショッピング

  • セブン-イレブン 浜松飯田町店

    約140m(徒歩2分)

  • マックスバリュ浜松飯田店

    約270m(徒歩4分)

  • スギ薬局 浜松飯田店

    約400m(徒歩5分)

  • 遠鉄ストア 西伝寺店

    約850m(徒歩11分)

  • フードマーケットマム 頭陀寺店

    約1,300m(徒歩17分)

教育機関

  • 浜松市立飯田幼稚園

    約600m(徒歩8分)

  • 浜松市立飯田小学校

    約550m(徒歩7分)

  • 浜松市立東部中学校

    約700m(徒歩9分)

医療機関

  • 三和診療所

    約400m(徒歩5分)

  • 木村歯科医院

    約400m(徒歩5分)

  • ワタセクリニック(内科、小児科)

    約600m(徒歩8分)

公共施設

  • 安松第三公園

    約800m(徒歩10分)

  • 浜松東警察署 名塚町交番

    約1,500m(徒歩19分)

  • 蒲協働センター

    約1,300m(徒歩17分)

その他

  • 浜松飯田郵便局

    約650m(徒歩9分)

  • 浜松いわた信用金庫 三和支店

    約400m(徒歩5分)

  • 浜松市東部地区体育館

    約750m(徒歩10分)

価格

価格 2,990万円~3,290万円

ローンシミュレーション

この物件を購入した場合の、
月々の支払い価格の一例です。

返済例 1

ボーナス併用プラン

毎月返済
ボーナス月加算額
(1回)
返済例 2

ボーナスなしプラン

毎月返済
ボーナス月加算額
(1回)
0
  • 借入額 万円
  • 頭金 万円
  • 変動金利(年利) %
  • 返済期間

※ボーナスは年2回で計算しています。

※別途諸経費が必要となります。

※その他の資金計画のシミュレーションを行いたい場合は「資金計画シミュレーション」をご利用ください。

イベント情報

現地案内会(事前に必ずお問い合わせください)
日程/公開中
■ネットでの予約

物件見学のご予約について、お電話はもちろん、しずなび内の「見学予約」または、「資料請求」ボタンからネット予約も可能です。
ご予約いただけますと、お客様のご都合の良い時間に合わせてご案内が可能です。

毎日ご案内可能ですが、各物件にスタッフが常駐しておりませんのでご連絡頂いてから向かわせて頂いております。
事前にご予約頂ければ、各種資料もご準備いたします。
各ご家庭に沿ったご案内ができるように誠心誠意ご対応いたします。

建物はもちろん、その土地の災害リスク、将来人口予想、周辺環境もレポートを纏めてご案内できます。お気軽にお申し付けください。

■選べるコースもご用意しております。

①ショートコース(10~15分)
主に物件の雰囲気や間取りを見て頂ける軽めコース

②通常コース(30~60分)
物件の内覧+住宅ローン+資金計画、スケジュールや周辺環境等、住宅に購入に関することを様々な角度からご提案させて頂くコース。

③ロングコース(上記以上)
通常コース+他の物件もまとめてみたい方にオススメコース。

新築一戸建て
新築

【2026年7月完成予定】浜松市中央区三和町 5棟 3SLDK/4LDK

所在地
静岡県浜松市中央区三和町273-1、273-4
価格
2,990万円~3,290万円
間取り
3SLDK4LDK
物件番号 N-330271

取引有効期限 2026年05月30日
次回更新予定日 2026年05月30日

※本掲載情報と現況に差異がある場合、現況を優先します。掲載物件は売却済あるいは売出中止となる場合もあります。
※価格は物件の代金総額を表示しており、消費税が課税される場合は税込み価格です。 (1000円未満は切り上げ。)
※金利(初期値)は2026年4月1日現在のものです。当社提携銀行によるもので、お客様によって金利が変わる場合もございます。

お気に入りに追加

お気に入り登録者数-

お気に入りって何?画面上部画面下部のボタンからお気に入り物件をいつでも確認できます。また「会員登録」すると、値下げ情報をメールでお知らせします。

お問い合わせの際に、物件番号を
お伝えいただくとスムーズです。

物件番号N-330271

似ている物件

  1. メリット1

    会員優先・
    非公開物件

    の閲覧

  2. メリット2

    新着物件
    先行配信

  3. メリット3

    プライスダウン
    物件
    を先行配信

  4. メリット4

    自分だけの
    マイページ作成

  5. メリット5

    イベント・セミナー・
    お役立ち情報

    お届け