新価格
新築一戸建て
新築

【5月完成予定】浜松市中央区豊町 4棟 4LDK 4台以上駐車可能!広々とした敷地と豊富な収納

価格
2,690万円~3,090万円
所在地

静岡県浜松市中央区豊町3426-4、3426-5、3426-6、3426-7

地図で確認
※地図上に表示される物件の位置は付近住所に所在することを表すものであり、実際の物件所在地とは異なる場合がございます。
交通
遠鉄バス/笠井上町停より徒歩約10分 約750m
販売戸数
4区画
総戸数
4区画
学区
豊西小学校/笠井中学校
間取り
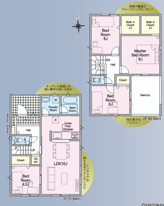
4LDK(1号棟:4SLDK リビングダイニングキッチン約17帖、洋室約8帖・約5.7帖・約5.7帖・約5帖、納戸 2号棟:4LDK リビングダイニングキッチン約16帖、洋室約8帖・約6帖・約4.5帖・約4.5帖 3号棟:4LDK リビングダイニングキッチン約18帖、洋室約7.5帖・約6帖・約6帖、洋風和室約4.5帖 4号棟:4LDK リビングダイニングキッチン約18帖、洋室約8.5帖・約6帖・約5.2帖・約4.5帖)
完成年月
2026年5月(完成予定)
建物面積
98.82m2~102.06m2(29.89坪~30.87坪)
土地面積
212.41m2~232.79m2(64.25坪~70.41坪)
お気に入りに追加

お気に入り登録者数-

お気に入りって何?画面上部画面下部のボタンからお気に入り物件をいつでも確認できます。また「会員登録」すると、値下げ情報をメールでお知らせします。

お問い合わせの際に、物件番号を
お伝えいただくとスムーズです。

物件番号N-314462

全体区画図

区画詳細

1号棟

価格 2,690万円
間取り 4SLDK
建物面積 100.44m2(30.38坪)
土地面積 221.64m2(67.04坪)

2号棟

価格 2,890万円
間取り 4LDK
建物面積 98.82m2(29.89坪)
土地面積 232.79m2(70.41坪)

3号棟

価格 2,990万円
間取り 4LDK
建物面積 98.82m2(29.89坪)
土地面積 221.71m2(67.06坪)

4号棟

価格 3,090万円
間取り 4LDK
建物面積 102.06m2(30.87坪)
土地面積 212.41m2(64.25坪)
内覧予約(無料)
お気に入りに追加

お気に入り登録者数-

お気に入りって何?画面上部画面下部のボタンからお気に入り物件をいつでも確認できます。また「会員登録」すると、値下げ情報をメールでお知らせします。

お問い合わせの際に、物件番号を
お伝えいただくとスムーズです。

物件番号N-314462

物件の特徴・設備

間取り・広さ LDK12畳以上、LDK15畳以上
土地 土地50坪以上、土地60坪以上
室内設備・仕様・収納 全居室収納、床下収納
キッチン システムキッチン、対面式キッチン
バス・トイレ 浴室乾燥機、浴室1坪以上、浴室に窓付き、追い炊き機能、シャワートイレ
バルコニー・テラス・庭 ルーフバルコニー、南面バルコニー
日当たり・採光 南向き(南東・南西含む)
構造・工法・仕様 複層ガラス
管理・セキュリティ TVモニター付インターフォン
駐車場・駐輪場 駐車場2台以上
立地・環境 閑静な住宅地
周辺環境 バス停 徒歩10分以内、公園 徒歩10分以内
証明書類あり 住宅性能評価書あり、新築時・増改築時の設計図あり
資金面の優遇制度あり フラット35・S適合(金利引き下げあり)
その他 住宅性能評価取得済み

物件詳細情報

前面道路

4m幅(アスファルト舗装)

北側約4m公道

建物構造 木造 / 2階建
施工会社 アーネストワン
建築確認番号 第R07SHC122970号他
駐車場 有り(4~6台、駐車場代無料)
都市計画 市街化調整区域
地目 宅地
用途地域 無指定
建ぺい率 60%
容積率 200%
土地権利 所有権
上水道
下水道
ガス・オール電化 個別プロパン
引渡 相談
お気に入りに追加

お気に入り登録者数-

お気に入りって何?画面上部画面下部のボタンからお気に入り物件をいつでも確認できます。また「会員登録」すると、値下げ情報をメールでお知らせします。

お問い合わせの際に、物件番号を
お伝えいただくとスムーズです。

物件番号N-314462

周辺環境

交通機関

  • 遠鉄バス/笠井上町

    約750m(徒歩10分)

  • 遠州鉄道/遠州小松

    約3,200m(徒歩40分)

ショッピング

  • セブン-イレブン 浜松豊町店

    約1,100m(徒歩14分)

  • V・drug 浜松笠井新田店

    約1,900m(徒歩24分)

  • フードマーケットマム 東美薗店

    約1,900m(徒歩24分)

  • リブロス 笠井

    約2,200m(徒歩28分)

  • スーパーこでら 善地店

    約2,400m(徒歩30分)

教育機関

  • 豊西幼稚園

    約1,300m(徒歩17分)

  • 豊西小学校

    約1,000m(徒歩13分)

  • 笠井中学校

    約1,700m(徒歩22分)

医療機関

  • おざわ歯科

    約500m(徒歩7分)

  • 友成医院

    約850m(徒歩11分)

  • こどもクリニックわだ

    約2,200m(徒歩28分)

公共施設

  • ゆたか緑地

    約600m(徒歩8分)

  • 浜松東警察署 笠井交番

    約1,900m(徒歩24分)

  • 笠井協働センター

    約1,700m(徒歩22分)

その他

  • JAとぴあ浜松 豊西支店

    約1,300m(徒歩17分)

  • 笠井郵便局

    約1,700m(徒歩22分)

  • たこまん 笠井店

    約1,800m(徒歩23分)

価格

価格 2,690万円~3,090万円

ローンシミュレーション

この物件を購入した場合の、
月々の支払い価格の一例です。

返済例 1

ボーナス併用プラン

毎月返済
ボーナス月加算額
(1回)
返済例 2

ボーナスなしプラン

毎月返済
ボーナス月加算額
(1回)
0
  • 借入額 万円
  • 頭金 万円
  • 変動金利(年利) %
  • 返済期間

※ボーナスは年2回で計算しています。

※別途諸経費が必要となります。

※その他の資金計画のシミュレーションを行いたい場合は「資金計画シミュレーション」をご利用ください。

イベント情報

現地案内会(事前に必ずお問い合わせください)
日程/公開中
■ネットでの予約

物件見学のご予約について、お電話はもちろん、しずなび内の「見学予約」または、「資料請求」ボタンからネット予約も可能です。
ご予約いただけますと、お客様のご都合の良い時間に合わせてご案内が可能です。

毎日ご案内可能ですが、各物件にスタッフが常駐しておりませんのでご連絡頂いてから向かわせて頂いております。
事前にご予約頂ければ、各種資料もご準備いたします。
各ご家庭に沿ったご案内ができるように誠心誠意ご対応いたします。

建物はもちろん、その土地の災害リスク、将来人口予想、周辺環境もレポートを纏めてご案内できます。お気軽にお申し付けください。

■選べるコースもご用意しております。

①ショートコース(10~15分)
主に物件の雰囲気や間取りを見て頂ける軽めコース

②通常コース(30~60分)
物件の内覧+住宅ローン+資金計画、スケジュールや周辺環境等、住宅に購入に関することを様々な角度からご提案させて頂くコース。

③ロングコース(上記以上)
通常コース+他の物件もまとめてみたい方にオススメコース。

新築一戸建て
新築

【5月完成予定】浜松市中央区豊町 4棟 4LDK 4台以上駐車可能!広々とした敷地と豊富な収納

所在地
静岡県浜松市中央区豊町3426-4、3426-5、3426-6、3426-7
価格
2,690万円~3,090万円
間取り
4LDK(1号棟:4SLDK リビングダイニングキッチン約17帖、洋室約8帖・約5.7帖・約5.7帖・約5帖、納戸 2号棟:4LDK リビングダイニングキッチン約16帖、洋室約8帖・約6帖・約4.5帖・約4.5帖 3号棟:4LDK リビングダイニングキッチン約18帖、洋室約7.5帖・約6帖・約6帖、洋風和室約4.5帖 4号棟:4LDK リビングダイニングキッチン約18帖、洋室約8.5帖・約6帖・約5.2帖・約4.5帖)
物件番号 N-314462

取引有効期限 2026年05月25日
次回更新予定日 2026年05月25日

※本掲載情報と現況に差異がある場合、現況を優先します。掲載物件は売却済あるいは売出中止となる場合もあります。
※価格は物件の代金総額を表示しており、消費税が課税される場合は税込み価格です。 (1000円未満は切り上げ。)
※金利(初期値)は2026年4月1日現在のものです。当社提携銀行によるもので、お客様によって金利が変わる場合もございます。

お気に入りに追加

お気に入り登録者数-

お気に入りって何?画面上部画面下部のボタンからお気に入り物件をいつでも確認できます。また「会員登録」すると、値下げ情報をメールでお知らせします。

お問い合わせの際に、物件番号を
お伝えいただくとスムーズです。

物件番号N-314462

似ている物件

  1. メリット1

    会員優先・
    非公開物件

    の閲覧

  2. メリット2

    新着物件
    先行配信

  3. メリット3

    プライスダウン
    物件
    を先行配信

  4. メリット4

    自分だけの
    マイページ作成

  5. メリット5

    イベント・セミナー・
    お役立ち情報

    お届け