浜松市の新築一戸建て購入情報
しずなび会員限定サービス会員になると5,000件の物件がご覧になれます。
現在の検索条件
- 浜松市
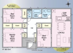
【2026年2月完成予定】浜松市中央区天王町 残3棟 3SLDK、4LDK
◇ZEH 水準住宅◇設計住宅性能評価書 / 耐震等級 3 取得◇長期優良住宅認定
イオンモール浜松市野と東名高速道路浜松 IC まで車で約 5 分。与進小・与進中へも徒歩約 15 分圏内で通学も安心。
利便性と子育て環境が調和した、家族に嬉しい立地♪
イオンモール浜松市野と東名高速道路浜松 IC まで車で約 5 分。与進小・与進中へも徒歩約 15 分圏内で通学も安心。
利便性と子育て環境が調和した、家族に嬉しい立地♪
もっと見る
価格
3,799万円~3,999万円
所在地
浜松市中央区天王町759番1、759番47、759番48、759番49
交通
遠鉄バス/天王停より徒歩約5分 約350m
建物面積
建物105.16m2~105.57m2(31.81坪~31.93坪)
土地面積
土地145.19m2・149.12m2(43.91坪・45.1坪)
間取り
3SLDK・4LDK
完成年月
2026年2月(完成予定)
物件番号 N-304746
この物件の写真
【2026年7月完成予定】浜松市中央区高丘北 2棟 4LDK、5LDK
長期優良住宅☆小学校 徒歩2分の通学にも安心な交通便の良い環境です。
もっと見る
価格
3,980万円・3,680万円
所在地
浜松市中央区高丘北4丁目104-9
交通
遠鉄バス「瑞穂橋」バス停 徒歩5分
建物面積
建物106.82m2・99.78m2(32.31坪・30.18坪)
土地面積
土地161.84m2・156.78m2(48.95坪・47.42坪)
間取り
4LDK・5LDK
完成年月
2026年7月(完成予定)
物件番号 N-304736
この物件の写真
【2025年10月完成済】浜松市浜名区於呂 最終1棟 4LDK 新築一戸建て
敷地61坪、カースペース3台可能!遠州岩水寺駅徒歩10分、太陽光パネル搭載のオール電化新築戸建て。コンビニ・スーパー徒歩5分以内で便利な生活を。
価格
2,930万円
所在地
静岡県浜松市浜名区於呂1674-6
交通
遠州鉄道/遠州岩水寺駅より徒歩約10分 約800m
建物面積
建物99.36m2(30.05坪)
土地面積
土地200.93m2(60.78坪)
間取り
4LDK
完成年月
2025年10月(完成済み)
物件番号 N-264235
【2025年9月完成済】浜松市中央区雄踏町山崎 4LDK 新築一戸建て
浜名湖近くの4LDK新築戸建て!南西公道に面していて陽当り良好。並列3台駐車可能です。
価格
2,298万円
所在地
静岡県浜松市中央区雄踏町山崎6439-2
交通
遠鉄バス/山崎南停より徒歩約4分 約260m
東海道本線/舞阪駅より車で約9分 約3.5㎞
建物面積
建物97.50m2(29.49坪)
土地面積
土地147.78m2(44.7坪)
間取り
4LDK
完成年月
2025年9月(完成済み)
物件番号 N-264272
浜松市中央区渡瀬町 最終1棟 4LDK 2025年7月完成済 新築一戸建て
飯田街道近く、利便性に優れた住環境。全棟、長期優良住宅認定物件です。
価格
2,830万円
所在地
静岡県浜松市中央区渡瀬町81-1
交通
遠鉄バス/渡瀬停より徒歩約2分 約110m
建物面積
建物105.57m2(31.93坪)
土地面積
土地183.28m2(55.44坪)
間取り
4LDK
完成年月
2025年7月(完成済み)
物件番号 N-248558
≪しずなびの家具付き分譲住宅≫浜松市中央区雄踏二丁目【3棟】
【中央区雄踏】豊かな自然と多彩な商業施設が充実した良好な住環境が充実
もっと見る
価格
3,990万円・4,070万円
所在地
静岡県浜松市中央区雄踏二丁目124-7
交通
バス停:宇布見マリーナ入口550m(徒歩約7分)
建物面積
建物111.78m2~117.08m2(33.81坪~35.41坪)
土地面積
土地168.36m2~170.60m2(50.92坪~51.6坪)
間取り
4LDK+S~4LDK+3S
完成年月
2024年10月(完成済み)
物件番号 N-191394
この物件の写真
≪しずなびの家具付き分譲住宅≫浜松市中央区三島町【2棟】
【家具付き新築一戸建て】豊かな自然と多彩な商業施設が充実した良好な住環境。
もっと見る
価格
4,080万円・4,090万円
所在地
静岡県浜松市中央区三島町1104-1
交通
バス停:三島町400m(徒歩約6分)
建物面積
建物105.98m2・106.81m2(32.05坪・32.31坪)
土地面積
土地173.59m2・174.52m2(52.51坪・52.79坪)
間取り
4LDK+2S
完成年月
2025年2月(完成済み)
物件番号 N-210804
この物件の写真
≪しずなびの家具付き分譲住宅≫浜松市中央区三和町【限定1棟・新築平屋建て】
【家具付き新築一戸建て】92坪の広々とした敷地に広がる暮らしやすさを一枚に。広さと快適さが叶う平屋ライフ。※子育てグリーン住宅支援事業補助金対象物件
もっと見る
価格
4,590万円
所在地
静岡県浜松市中央区三和町841
交通
遠鉄バス:本郷東(徒歩約9分) JR東海道:天竜川駅(車約7分)
建物面積
建物97.71m2(29.55坪)
土地面積
土地304.92m2(92.23坪)
間取り
3LDK+3S
完成年月
2025年3月(完成済み)
物件番号 N-224446
この物件の写真
≪しずなびの家具付き分譲住宅≫浜松市中央区和田町【3棟】
【家具付き新築一戸建て】多彩な商業施設と良好な住環境が充実。※子育てグリーン住宅支援事業補助金対象物件
もっと見る
価格
5,080万円~5,230万円
所在地
静岡県浜松市中央区和田町376-2
交通
遠鉄バス:和田町西(徒歩約5分)
建物面積
建物110.12m2~121.72m2(33.31坪~36.82坪)
土地面積
土地180.02m2~185.79m2(54.45坪~56.2坪)
間取り
4LDK+S~5LDK+3S
完成年月
2025年3月(完成済み)
物件番号 N-217114
この物件の写真
【2025年11月完成済】浜松市中央区原島町 3LDK 新築一戸建て
南面道路により、陽あたりの良い邸宅。コストコ徒歩4分。
もっと見る
価格
2,880万円
所在地
静岡県浜松市中央区原島町67-7
交通
遠鉄バス「原島変電所」バス停 徒歩2分、JR「浜松」駅 バス29分
建物面積
建物83.62m2(25.29坪)
土地面積
土地95.44m2(28.87坪)
間取り
3LDK
完成年月
2025年11月(完成済み)
物件番号 N-270709
この物件の写真
浜松市中央区大蒲町 4LDK 2025年8月完成済 新築一戸建て
『大蒲西』バス停 徒歩2分!南東側接道により、陽あたりの良い邸宅。東海道、国道152号線至近。敷地59坪以上、駐車6台可能な広々とした整形地。(車種による)
もっと見る
価格
3,780万円
所在地
静岡県浜松市中央区大蒲町84-21
交通
遠鉄バス/大蒲西停より徒歩約2分 約100m
建物面積
建物107.23m2(32.43坪)
土地面積
土地197.78m2(59.82坪)
間取り
4LDK
完成年月
2025年8月(完成済み)
物件番号 N-249479
この物件の写真
浜松市中央区新津町 3LDK 2025年9月完成済 新築一戸建て
遠州鉄道「助信」駅 徒歩9分、整った交通環境。
もっと見る
価格
4,180万円
所在地
静岡県浜松市中央区新津町455-2
交通
遠州鉄道/助信駅より徒歩約9分 約650m
建物面積
建物101.44m2(30.68坪)
土地面積
土地132.72m2(40.14坪)
間取り
3LDK
完成年月
2025年9月(完成済み)
物件番号 N-253035
この物件の写真
浜松市中央区葵西2丁目 5LDK 2025年9月完成済 新築一戸建て
イオンタウン 徒歩6分、周辺に商業施設が充実。南側がひらけ、とても陽あたり良い邸宅です。
もっと見る
価格
3,280万円
所在地
静岡県浜松市中央区葵西2-173-56
交通
遠鉄バス/初生町西停より徒歩約5分 約350m
建物面積
建物102.68m2(31.06坪)
土地面積
土地175.70m2(53.14坪)
間取り
5LDK
完成年月
2025年9月(完成済み)
物件番号 N-252918
この物件の写真
浜松市中央区葵西1丁目 3LDK 2025年8月完成済 新築一戸建て
『初生町西』バス停 徒歩9分!イオンタウン 徒歩5分、買物便利。姫街道へのアクセス良好。葵西小学校 徒歩7分、安心の通学距離。
もっと見る
価格
2,680万円
所在地
静岡県浜松市中央区葵西1-517-10
交通
遠鉄バス/初生町西停より徒歩約9分 約700m
建物面積
建物92.73m2(28.05坪)
土地面積
土地102.05m2(30.87坪)
間取り
3LDK
完成年月
2025年8月(完成済み)
物件番号 N-249467
この物件の写真
【ご見学可能です!】浜松市中央区曳馬 4棟 2025年6月完成済 新築一戸建て
全4区画の新規分譲地。
遠州鉄道「曳馬」駅徒歩7分、交通利便性に優れた立地。
飛龍街道が利用しやすく、市街地へのアクセスも良好。
遠州鉄道「曳馬」駅徒歩7分、交通利便性に優れた立地。
飛龍街道が利用しやすく、市街地へのアクセスも良好。
もっと見る
価格
3,280万円~4,380万円
所在地
静岡県浜松市中央区曳馬4丁目1351
交通
遠州鉄道「曳馬」駅 徒歩約7分 約500ⅿ
遠鉄バス/林停 徒歩約10分 約800ⅿ
建物面積
建物93.56m2~116.13m2(28.3坪~35.12坪)
土地面積
土地141.17m2~198.33m2(42.7坪~59.99坪)
間取り
3LDK~5LDK
完成年月
2025年6月(完成済み)
物件番号 N-234291
この物件の写真
【2025年11月完成済】浜松市中央区高塚町 3棟 3LDK/4LDK 高塚駅まで徒歩5分 新築一戸建て
JR東海道本線「高塚」駅まで徒歩5分!!制震ダンパー(飯田グループ初グッドデザイン賞受賞)標準装備!こだわりの3邸が誕生!
もっと見る
価格
2,659万円~2,989万円
所在地
静岡県浜松市中央区高塚町4779-12
交通
東海道本線/高塚駅より徒歩約5分 約350m
建物面積
建物97.71m2~101.43m2(29.55坪~30.68坪)
土地面積
土地129.02m2~140.12m2(39.02坪~42.38坪)
間取り
3LDK~4LDK
完成年月
2025年11月(完成済み)
物件番号 N-282277
この物件の写真
会員になると5,000件以上の
物件がご覧になれます(無料)
物件がご覧になれます(無料)
-
メリット1
会員優先・
非公開物件の閲覧 -
メリット2
新着物件を
先行配信 -
メリット3
プライスダウン
物件を先行配信 -
メリット4
自分だけの
マイページ作成 -
メリット5
キャンペーン・
お役立ち情報をお届け
メールアドレスだけで簡単登録♪
(※は必須項目)
(既にしずなび会員の方)
ログインして続きを見る
浜松市の新築一戸建てのことなら【しずなび】におまかせ!浜松市の新築一戸建て物件情報を随時更新。
また、新築一戸建て購入の参考になるコンテンツも充実。しずなびはあなたの浜松市新築一戸建て購入をサポートします。